Нова Сграда / Среден Етаж / Изцяло ЮГ / Луксозно Изпълнение
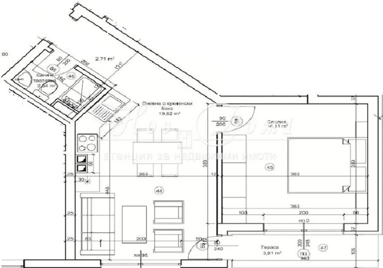
Продаeт недвижимость в Болгарии / Двухкомнатная квартира, Варна, Цветен (Colorful), 69 кв. м.
€ 136000
 |
Цена за кв. м.: € 1 971 /m2
Тип строительства:  керпич
Год постройки:  2026
Экспозиция:  Юг
Этаж:  2
Общее количество этажей:  5
Ново строителство:  Да
Реф. №: 82984
Позвоните
Описание
Ваш брокер
 



 
 

