Акт 16! Просторен, светъл и покрит! ПОДОВО отопление! Непреходен!
Продава / Четиристаен апартамент, СОФИЯ, Горубляне, 134 кв.м.
Апартамент с Акт 16! Просторен, светъл и покрит! ПОДОВО отопление! Непреходен!
Детайлна информация на: www.novdom1.bg – Реф. №: 75875
Консултант недвижими имоти: Горан Радков – 0897 000 214
Описание:
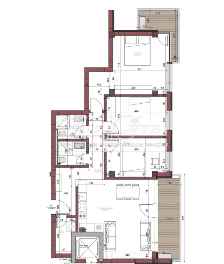
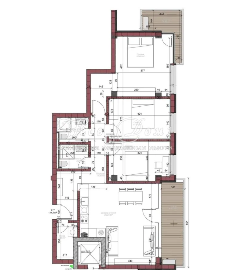
Апартаментът представлява просторен и светъл четиристаен апартамент с обща площ от 134 кв. м., разположен на 4-ти етаж от общо 5, покрит апартамент, в сграда с издаден акт 16.
В жилището има изградено подово отопление, което е предвидено да се ползва на газ, тъй като сградата е газифицирана, но при желание може да се използва и термопомпа. Има и положени тръбни разводки за климатици. Монтиран е цветен видеодомофон с WiFi;
Прозорците са REHAU-SYNEGO с троен стъклопакет;
Входна врата е SOLID, а сградата е с контрол на достъпа.
Общите части са изпълнени с гранит.
Разпределението на помещенията и техните размери са както следва:
- Входно антре и коридор с площ около 10 кв. м.
- Складово и мокро помещение 3 кв. м.
- Функционална и просторна всекидневна с кухня и трапезария с площ 25 кв. м. с излзаз на тераса;
- Тераса – ЗАВЪРШЕНА с гранитограс, с площ 8,5 кв. м.;
- Баня с тоалетна, първа, 3,2 кв. м.;
- Баня с тоалетна, втора, 3,5 кв. м.;
- Спалня, първа, около 11 кв. м.;
- Спалня, втора, около 11 кв. м.;
- Спалня, трета (Master Bedroom), около 18,7 кв. м.! с излаз на собствена тераса;
- Тераса – ЗАВЪРШЕНА с гранитогрес, с площ 4,5 кв. м.;
Разположение на имота:
Апартаментът предлага отлично местоположение! Сградата се намира в новата част на кв. Горубляне, на вътрешна и тиха уличка, обгърната от много дървета и зеленина, като в същото време локацията е съвсем близо до магазини за хранителни стоки, хранителни хипермаркети, а също осигурява и бърза връзка – само няколко мин. с основни пътни артерии – както градски, така и междуградски, сред които бул. Самоковско шосе, бул. Цариградско шосе, Околовръстен път и т.н. и само на няколко мин. от Бизнес парка в кв. Младост 4.
Има изградена велоалея по бул. Самоковско шосе до метростанция Интер Експо Център.
Горубляне е един от най-зелените квартали на София с нискоетажно застрояване и ниска гъстота на населението. Непосредствено покрай Горубляне преминава река Искър, която предлага перфектното място за отдих в естествена горска среда. Езерото Панчарево се намира на 3,5км. от сградата и е достъпно не само с автомобил, но също с велосипед и пеша.
Предимства:
- Големи, просторни, помещения;
- Изградено ПОДОВО ОТОПЛЕНИЕ!
- Непреходен;
- Функционална и просторна всекидневна с голяма тераса;
- Голяма спалня (Master Bedroom) почти 19 кв. м. със собствена втора тераса;
- Отлично местоположение;
- Качествено строителство и вложени материали;
- Отлични общи части изпълнени с гранит;
- Свързаност с основни градски артерии и градски транспорт;
- Изградена велоалея по бул. Самоковско шосе до метростанция Интер Експо Център.
- Издаден акт 16!;
- Широк подход и подземния паркинг, където спокойно се разминават 2 коли!;
Към апартамента е предвидено и подземно паркоместо, което може да се закупи допълнително на цена от 25 000 Е.
НОВ ДОМ 1 разполага с:
„Юридически Отдел“ – извършващ всички необходими юридически и технически проверки, организира всички етапи на сделката до нейното финализиране с нотариално прехвърляне на имота.
„Кредитен Отдел“ – съдействащ за отпускане на банков кредит при възможно най-добри условия за клиента, като избора на банка се определя спрямо нуждите и възможностите на клиента.
„Строително-Ремонтен Отдел“ – гарантиращ при нужда цялостен ремонт на вашето жилище до ключ при най-изгодни условия и цени.
НЯМА ЗНАЧЕНИЕ ДАЛИ ТЪРСИТЕ ИЛИ ПРОДАВАТЕ! ВСИЧКИ НАШИ КОНСУЛТАЦИИ СА БЕЗПЛАТНИ!
СВЪРЖЕТЕ СЕ С НАС И ЗАПОВЯДАЙТЕ В ОФИСА НА АГЕНЦИЯ НОВ ДОМ 1, ЗА ДА ВИ ПРЕДЛОЖИМ ТАЗИ И МНОГО ДРУГИ ОФЕРТИ. АГЕНЦИЯТА РАЗПОЛАГА С БОГАТ ИЗБОР ОТ ИМОТИ!













