✨ ЕКСЛУЗИВНО✨Най-ниска цена за района✨1115 ев. кв.м.✨
Продава / Едностаен апартамент, ВАРНА, Владиславово, 44 кв.м.
🏡 Нова сграда във Владиславово – Ексклузивно само при нас!
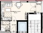
Предлагаме за продажба 1-стаен апартамент с възможност за преустрояване, с площ 44 кв.м.
🔑 Реф. № 82762 | Подробна информация: www.novdom1.bg
⸻
✨ Характеристики на имота:
• Входно антре
• Баня и тоалет в едно помещение
• Просторен дневен тракт с обособена кухненска част
• Възможност за преустрояване в две отделни помещения
• Излаз на тераса
⸻
🏗 Състояние:
• Имотът се издава в степен на завършеност „по БДС“
• Осигурена възможност за завършване „до ключ“ при преференциални цени
• Възможност за закупуване на П.М., или ГАРАЖ
⸻
📍 Локация:
Имотът се намира в кв. Владиславово – район с отлична инфраструктура и удобства.
В непосредствена близост:
• Главни пътни артерии и удобен градски транспорт
• Училища и детски градини
• Административни учреждения и банки
• Супермаркети, търговски центрове и аптеки
• Зелени площи, детски площадки, козметични студия и заведения
⸻
🏢 Строителство:
• Сграда от висококачествено ново строителство
• Модерна архитектура и енергоефективни решения
⸻
📌 Предимства на имота:
• Статут „апартамент“ – изцяло пригоден за живеене
• Подходящ за инвестиция и отдаване под наем
• Описание и параметри, предоставени и одобрени от собственика
⸻
💼 „НОВ ДОМ 1“ Ви предлага пълно съдействие:
• Юридически отдел – всички проверки и подготовка на документите до финализиране на сделката
• Кредитен отдел – съдействие за банково финансиране при най-добри условия, съобразени с вашите възможности
• Строително-ремонтен отдел – довършване и ремонт на жилището „до ключ“ при изгодни цени
⸻
👩💼 Консултант Недвижими Имоти:
Дарина Радева – 📞 0895 501 046
📲 Контакти за въпроси, коментари и огледи:
• Телефон: всеки ден от 8:30 до 22:30 – 0895 501 046
• WhatsApp: денонощно – 0895 501 046



