Пред АКТ 16 ! До Хай Парк и Симеоновско Шосе ! Дневна 23м2 ! Югоизток ! Двор ! Паркоместа
Продава / Двустаен апартамент, СОФИЯ, Малинова долина, 118 кв.м.
Пред АКТ 16 ! До Хай Парк и Симеоновско Шосе ! Дневна 23м2 ! Югоизток ! Двор ! Паркоместа
Референтен код № 82558 в www.novdom1.bg!
Консултант недвижими имоти: Калоян Николов, тел. 0890 555 960!
Крайна цена с включено ДДС!
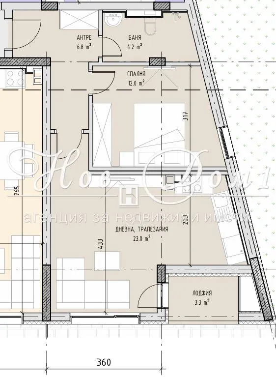
Апартаментът представлява: Всекидневна с кухненски бокс около 23м2, Спалня около 12м2, Баня и тоалетна около 4.2м2, антре около 6.8м2, собствен двор с площ 44м2. Изложение Изток – ЮгоИзток.
Безупречно изпълнение на сградата, луксозни общи части и озеленена част. В близост до Околовръстен път и Симеоновско шосе, което му дава лесен достъп до останалата част на града. В момента е на АКТ 15. Подадени документи за АКТ 16!
Опция за подземни и партерни паркоместа и гаражи!
- Външни Паркоместа от 19 000€
- Подземни Паркоместа от 31 000€
- Единични Гаражи по 33 000€
- Двойни Гаражи от 55 000€
Предлагаме още имоти в същата сграда, звъннете за повече информация!
Най-високото качество на строителство и не само:
- Затворен Комплекс
- Контрол на достъпа
- Охрана
- СОТ
- Луксозни общи части
- Зелени площи около сградата
Забележка: Приложените снимки, схеми и визуализации са с цел добиване на максимална представа за имота.
Състояние: Жилището се завършва до БДС: Екстериорна блиндирана врата; Под и стени: Машинно-обработена замаска; Отделено място за газово котле.
Отлична локация:
- В близост до Околовръстен път и Симеоновско шосе
- На 9 мин пеша от супермаркет Фантастико
- На 13 мин пеша от супермаркет Kaufland
- На 5 мин пеша от спирка на рейс 67
- На 8 мин пеша от фитнес
- В близост до университети НСА и УНСС
- В бързо развиващ се район с много бъдещи удобства
Нов Дом 1 – винаги най-доброто на пазара!






