До парка „Заимов“ и метростанция „Театрална“! Бутикова луксозна сграда с 9 апартамента! Вземи с 30% вноска!
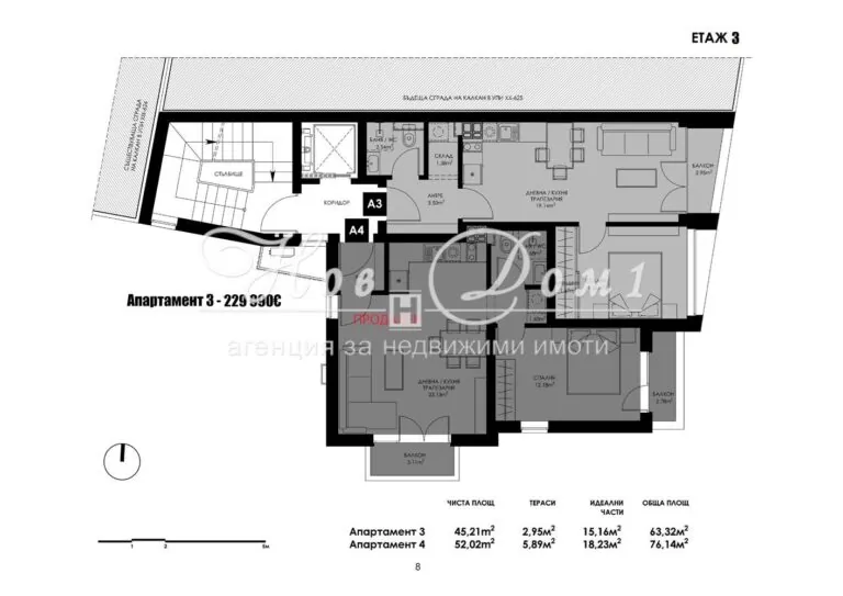
Продава / Двустаен апартамент, СОФИЯ, Оборище, 64 кв.м.
До парка Заимов и метростанция Театрална! Бутикова луксозна сграда с 9 апартамента! Вземи с 30% вноска!
Референтен код №79491 в www.novdom1.bg!
Консултант недвижими имоти: Мирослав Стоянов, тел. 0879 900 430!
Основни предимства на имота:
- Луксозна бутикова сграда със само 9 апартамента!
- Неустоима Локация: до парка Заимов и метростанция Театрална!
- Качество: сграда Еталон в квартала, изпълнение на доказана строителна фирма и без компромиси вложени материали и изработка последно поколение!
- Правилни форми на стаите!
- Всичко необходимо за Двустаен: Дневна с Кухня, Спалня, Балкон, Килер, Баня с Тоалетна и Антре!
- Без скосове, без отстъпи, без чупки в стаите!
- Опция Гараж или Паркомясто!
Имотът представлява: входно Антре с място за портманто, изключително светъл Дневен Тракт + Трапезария + Кухн. Бокс с изход към Тераса, топла Спалня, самостоятелно помещение тип Мокро/Килер/Дрешник, Баня + Тоалетна! Опция към имота е да се закупи партерен гараж или Паркомясто! Общата площ на имот + общи части + Тераса е 64 кв.м., а застроената площ е 48,4 кв.м., а Терасата е 3 кв.м. Имотът може да бъде закупен с кредит от банка, в случай на желание от финансиране с ипотечен/жилищен кредит! Сградата и имота ще се отопляват на електричество. Очаквано въвеждане в експлоатация/Акт 16 е през 2027 година, като е предвиден Технически паспорт/енергиен сертификат!
Забележка: Приложените снимки, схеми и визуализации са с цел добиване на максимална представа за завършения вид на имота.
Състояние: Предвидено е завършване на шпакловка и замазка, като може да бъде издадено До Ключ или изцяло обзаведено по интериорен проект!
Към момента включва: Екстериорна блиндирана врата; Под: нивелирана подова замазка; Стени: машинно-обработена гипсова мазилка с турбозол, висок клас ПВЦ дограма с троен стъклопакет и стъкла 4 сезона, Велукс прозорци към небето в двете Бани, инсталация за отопление на газ с индивидуално газово котле и тръби за радиатори/лири във всяко помещение.
Сградата: Луксозно завършени общи части с естествен камък – гранит, алуминиеви парапети, испански електрически асансьор Orona. Звънчева и Видео-домофонна система за контролиран достъп в сградата.
Отлична локация: район Оборище, централната част на София! Намира се само на 5 минути пеша до парка Заимов и метростанция Театрална! Разположен е на малка тиха уличка, без шум от близкия трафик и градския живот. Други близки обекти са съответно на около 6-8 минути пешеходно до парк Военна академиея и МОЛ Сердика и на около 10-12 минути до Докторски паметник и Софийски университет Св. Климент Охридски. Недалеч са жълтите павета, Народното събрание и храм-паметника Александър Невски – около 15 минути пеша!
Уважаеми клиенти само и единствено от агенция Нов Дом 1 можете да получите преференциални цени и условия за покупката на този и други имоти в тази сграда.
Нов Дом 1 – винаги най-доброто на пазара!





