Голям Двустаен ! Дневна 25м² ! АКТ 15 ! ПМ ! Нова Сграда ! Отлична Инвестиция !
Продава / Двустаен апартамент, СОФИЯ, Малинова долина, 76 кв.м.
Голям Двустаен ! Дневна 25м² ! АКТ 15 ! ПМ ! Нова Сграда ! Отлична Инвестиция !
Референтен код №84291
Консултант недвижими имоти: Калоян Щерев , тел. 0894 555 630
Крайна цена с включено ДДС!
Предлагаме просторен двустаен апартамент в нов модерен жилищен проект в кв. Дървеница – район с изключително високо търсене както за живеене, така и за отдаване под наем, благодарение на близостта до метростанция, университети и основни пътни артерии.
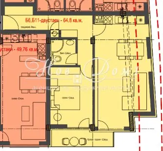
Апартаментът представлява:
Просторна дневна с кухненски бокс, позволяваща обособяване на удобна холова и трапезна зона; голяма спалня с правилна форма и лесно обзавеждане; баня с тоалетна; функционално антре; тераса; складово помещение.
Жилището е с отлично разпределение без излишни площи, което осигурява максимален комфорт и ефективно използване на пространството.
Сградата е нова и съвременна в кв. Малинова Долина, изпълнена с модерна архитектура, качествени материали и контролиран достъп, осигуряващи сигурна и спокойна жилищна среда.
Предимства на имота:
✔ Просторна дневна
✔ Голяма спалня
✔ Функционално разпределение
✔ Отличен както за живеене, така и за инвестиция
✔ Нова модерна сграда
✔ Възможност за покупка на паркомясто
Жилището се издава по БДС, което дава възможност на новия собственик да го завърши и обзаведе изцяло по собствен вкус.
Възможност за закупуване на външно паркомясто.
Отлична локация – кв. Малинова Долина:
- На пешеходно разстояние от:
– Ресторант High Park
– Университети и студентски кампуси
– Спирки на градски транспорт
– Магазини, супермаркети и заведения
- На минути с автомобил:
– Бизнес Парк София
– Студентски град
– Околовръстен път
– Големи търговски вериги и молове
Имотът е изключително подходящ за инвестиция, поради постоянния интерес към наеми в района от студенти и млади професионалисти.
Нов Дом 1 – най-доброто на пазара !











