ПРЕМИЕРА !!! Новa Луксозна Сграда / В централната част на Виница / Различни Имоти / Паркоместа / Разсрочено плащане
Продава / Жилищна сграда, ВАРНА, Виница, 70 кв.м.
🏡АТРАКТИВНИ ДВУСТАЙНИ И ТРИСТАЙНИ ИМОТИ 🏡НАЙ-ЖЕЛАНАТА ЛОКАЦИЯ 🏡 ЛУКСОЗНА ЖИЛИЩНА СГРАДА 🏡ОПЦИЯ ЗА ПАРКОМЯСТО🏡
Перфектна цена за централната част на кв. Виница – Варна!
ЕКСКЛУЗИВНА СГРАДА
Детайлна информация на: www.novdom1.bg – Реф. №: 83024
Предпремиерни продажби – запази сега и си гарантирай имот, с фиксирана цена до края на строителството!
СХЕМА НА ПЛАЩАНЕ: 30/30/30/10 или 50/40/10! Отлична възможност за висока доходност!
Ексклузивна сграда в центъра на кв. Виница
🏠 Жилища за всеки стил на живот
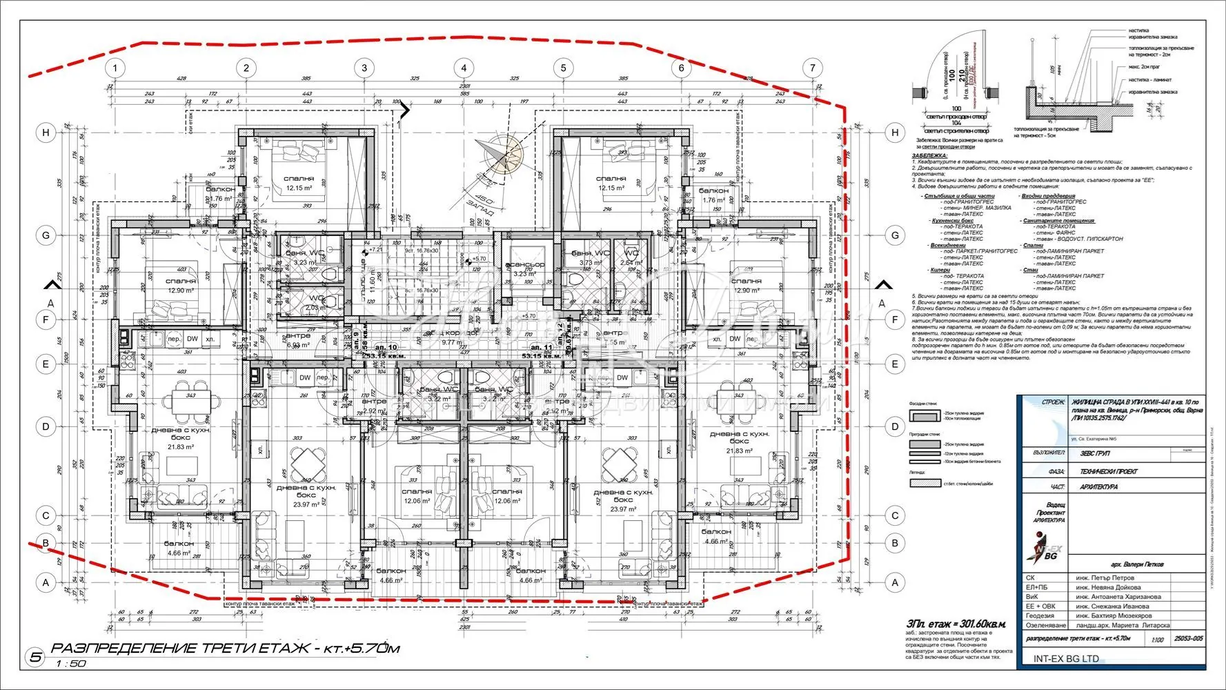
🧱Имотите представляват: 2-стайни и 3-стайни, с пълноценни дневни, с кухненски тракт и просторни спални! На полуподземен етаж – два тристайни офиса, с отлични параметри.
✔️ Двустайни около 68 м²
✔️ Тристайни около 99 м²
✔️ Тристайни офиси около 89 м²
Всички апартаменти, без офисите са с изби.
Паркоместа – осигуряват максимално удобство, в район с липса на такива.
🏗️ Строителство и срокове
📆 Начало: януари 2026 г.
🏁 Завършване: февруари 2027 г.
🏗️Сградата: Удоволствието да намериш имот, който да превърнеш в прекрасен и уютен дом в най-желания квартал на Варна. Луксозно завършени общи части на естествен гранит, хидравличен асансьор с „долно“ машинно, гарантиращ безшумната работа на съоръжението. Облицовка на фасадата с естествен камък . Домофонна система за контролиран достъп в сградата.
Това е инвестиция в бъдеще, с гарантирана стойност и локация.
Забележка: Приложените по-горе описания, снимки, скици, архитектурни разпределения и визуализации са реални, те имат за цел да Ви дадат максимално добра и идейна представа за общия вид и разпределението на имотите! Горепосочените са предоставени и одобрени от собственика, същите са публикувани с неговото съгласие ! Имотът се издава пригоден за живеене и е със статут на апартамент, което го прави идеален за инвестиция и отдаване под наем!
Ние с Вас до финализиране на сделката.💰 Инвестиция в качество и престиж
📞 За повече информация и свободни апартаменти:
Женя Илиева Нов Дом 1
📲 0894 555 680
🌐 www.novdom1.bg





