ПРОСТОРЕН 2-СТАЕН АПАРТАМЕНТ В ЦЕНТЪРА НА ВАРНА /СРЕДЕН ЕТАЖ / ИДЕАЛНА ЛОКАЦИЯ / АПАРТАМЕНТ С ПЕРФЕКТНО РАЗПРЕДЕЛЕНИЕ / СВЕТ
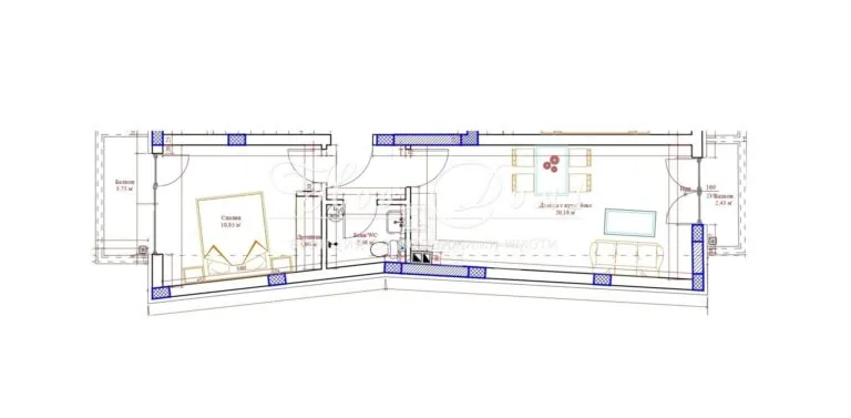
Продава / Двустаен апартамент, ВАРНА, Погреби, 75 кв.м.
€ 126400
 |
Цена на квадратен метър: € 1 685 /m2
Тип на строителство:  тухла
Стаи:  2
Етаж:  3
Етажи общо:  5
Ново строителство:  Да
Реф. №: 81416
Обади се
Описание
Вашият брокер
 




 
 
 

