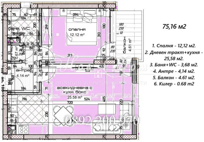
2-стаен/ Младост/ Морска панорама/ Комфорт
Продаeт недвижимость в Болгарии / Двухкомнатная квартира, Варна, Младост 1, 75 кв. м.
€ 123500
|
Цена за кв. м.: € 1 643 /m2
Тип строительства: керпич
Видове отопление: Електричество
Екстри: в строеж, асансьор, с паркомясто, масивна външна врата, входа се заключва
Етап на строителсто: before act 14
Год постройки: 2027
Спальни: 1
Стаи: 2
Террасы: 1
Комбинирани баня с тоалетна: 1
Реф. №: 84381
Позвоните
Описание
Ваш брокер








