394 €/кв.м Мараша!!! Склад / Изба / Сутерен | Топ локация | Възможна промяна на статут
Продаeт недвижимость в Болгарии / Кладовачное помещение, Пловдив, Мараша, 107 кв. м.
€ 42250
|
Цена за кв. м.: € 395 /m2
Тип строительства: керпич
Екстри: технически паспорт на сградата, ток
Меблировка: немеблированный
Екстериор: Вода, Ток
Год постройки: 2006
Стаи: 1
Общее количество этажей: 6
Реф. №: 83699
Позвоните
Описание
Ваш брокер
394 €/кв.м Мараша!!! Склад / Изба / Сутерен | Топ локация | Възможна промяна на статут
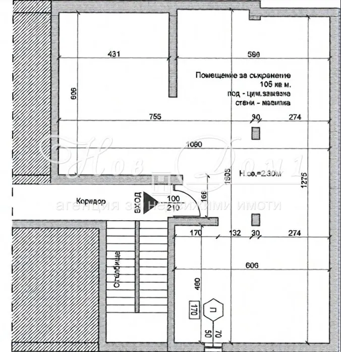
Локация: гр. Пловдив, кв. Мараша (в близост до ВИХВП и централни удобства)
Цена: 42 250 € | Площ: 107.37 кв.м | Реф. №: 83699
Консултант Недвижими Имоти: Николас Екман | +359 895 501 036
Основни характеристики:
- Тип: Склад / Изба
- Година: 2006
- Етаж: Сутерен с прозорец
- Височина на тавана: 2 м
- Тоалетна Може да се монтира
- Достъп: През общото стълбище на сградата
- Състояние: Необзаведен
- Екстериор: Вода и ток
- Разположение: В жилищна сграда с търговски обекти на партерно ниво (6 етажа общо)
Предимства и акценти:
• Страхотна централна локация в кв. Мараша – един от най-търсените и престижни квартали на Пловдив
- Близо до ВИХВП, удобен достъп до центъра, магазини, транспорт и услуги
- Голяма площ на атрактивна цена (около 394 €/кв.м)
- Възможност за промяна на предназначението в складово помещение или друго според нуждите
- Модерна тухлена сграда от 2006 г. с поддържан вид
- Наличие на вода, ток и тоалетна – подходящо за склад, архив, работилница или инвестиция
- Тих и удобен район с добра инфраструктура
Вашият ход:
Свържете се за оглед и пълна информация!
Николас Екман
Телефон / Viber / WhatsApp: +359 895 501 036







