4-стаен САМО 229 990 евро! 35 кв. ДНЕВНА! ЮГ! Акт 15! Изобилие от детски градини, училища и паркови пространства!
Продаeт недвижимость в Болгарии / Четырехкомнатная квартира, СОФИЯ - Sofia, Надежда 4, 116 кв. м.
4-стаен САМО 229 990 евро! 35 кв. ДНЕВНА! ЮГ! Акт 15! Изобилие от детски градини, училища и паркови пространства!
Детайлна информация на: www.novdom1.bg – Реф. №: 83137
Консултант недвижими имоти: Горáн Радков – 0897 000 214
Разположение на имота:
Имотът се намира на комуникативно място в кв. Надежда 4, на тиха и спокойна вътрешна уличка, заобиколен от паркови пространства и множество детски градини, училища, хранителни магазини и хипермаркети, автобусни и трамвайни линии. Метростанция ,,Бели Дунав е на 1,2 км. от сградата.
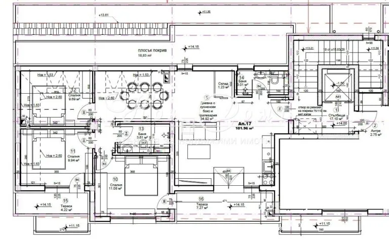
Описание: Апартамрентът е разположен в новострояща се масивна тухлена сграда. Строителството върви по план, по който се предвижда сградата чда получи Акт 16 в началото на 2026 г.
Жилището се състои от четири основни помещения, разпределени по следния начин:
- Всекидневна с кухненя и трапезария с площ 35 кв. м.! с излаз на две тереаси;
- Тераса 7,3 кв. м.;
- Тераса 19 кв. м.;
- Складово помещение 1,23 кв. м.
- Баня с тоалетна 3 кв. м.;
- Спалня 11 кв. м.;
- Спалня 10 кв. м.;
- Спалня 10 кв. м с излаз на тераса;
- Втора тераса с площ 4,22 кв. м;
Предимства:
- Акт 16 в началото на 2026 г.
- Жюно изложение;
- 35 кв. м. ДНЕВНА!
- 3 тераси – голямата – 19 кв. м. е на 500 Е / кв. м., а НЕ СЕ ТАКСУВА на цената на апартамента!;
- Качествено ново строителство;
- Хубав и спокоен квартал на вътрешна уличка;
- Изобилие от детски градини и училища, зелени паркови пространства;
- Хранителни магазини и хипермаркети;
- Градски транспорт;
НОВ ДОМ 1 разполага с:
„Юридически Отдел“ – извършващ всички необходими юридически и технически проверки, организира всички етапи на сделката до нейното финализиране с нотариално прехвърляне на имота.
„Кредитен Отдел“ – съдействащ за отпускане на банков кредит при възможно най-добри условия за клиента, като избора на банка се определя спрямо нуждите и възможностите на клиента.
„Строително-Ремонтен Отдел“ – гарантиращ при нужда цялостен ремонт на вашето жилище до ключ при най-изгодни условия и цени.
НЯМА ЗНАЧЕНИЕ ДАЛИ ТЪРСИТЕ ИЛИ ПРОДАВАТЕ! ВСИЧКИ НАШИ КОНСУЛТАЦИИ СА БЕЗПЛАТНИ!
СВЪРЖЕТЕ СЕ С НАС И ЗАПОВЯДАЙТЕ В ОФИСА НА АГЕНЦИЯ НОВ ДОМ 1, ЗА ДА ВИ ПРЕДЛОЖИМ ТАЗИ И МНОГО ДРУГИ ОФЕРТИ. АГЕНЦИЯТА РАЗПОЛАГА С БОГАТ ИЗБОР ОТ ИМОТИ!






