АКТ 16! 39 кв. м. ДНЕВНА!! 3стаен=4стаен! До мол ПАРАДАЙС! Панорама Витоша! МЕТРОСТАНЦИЯ!
Продаeт недвижимость в Болгарии / Трёхкомнатная квартира, СОФИЯ - Sofia, Лозенец, 130 кв. м.
АКТ 16! 39 кв. м. ДНЕВНА!! 3стаен=4стаен! До мол ПАРАДАЙС! Панорама Витоша! МЕТРОСТАНЦИЯ!
До мол ПАРАДАЙС, до МЕТРОСТАНЦИЯ и градски транспорт!
Референтен код в www.novdom1.bg: № 83183
Консултант недвижими имоти: Горáн Радков, тел. 0897 000 214
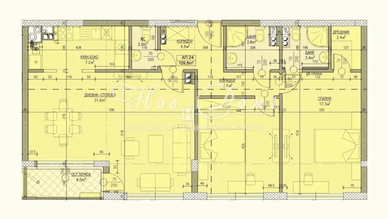
Апартаментът представлява:
Просторно тристайно жилище, разположено на 8-ми етаж, изцяло покрит, във висок клас сграда с луксозни общи части, съвременна визия и безупречно качество!
Високи френски прозорци! Дограмата е много висок клас – алуминиева, с троен стъклопакет и прекъснат темомост на марката REYNAERS.
Жилището е снабдено с климатици, монтирана отоплителна система на ГАЗ, вкл. поставени алуминиеви радиатори!
Топло, уютно и просторно жилище с чиста жилищна площ от 110 кв. м. и
Помещенията са разпределени по следния начин:
- Коридор с площ 4,8 кв. м.;
- Дневна с кухня и трапезария с площ 39 кв. м.!!! с изход на тераса;
- Тераса с панорамна гледка с площ 4,5 кв. м.;
- Коридор към спалните и санитарните помещения 3,6 кв. м.;
- Малка спалня с площ 14 кв. м.;
- Голяма спалня 17,3 кв. м. с дрешник 2,4 кв. м. или общо 19,7 кв. м.;
- Баня стоалетна 3,4 кв. м.;
- Баня стоалетна 3,8 кв. м.;
- Трето санитарно помещение – тоалетна / мокро помещение или склад 2 кв. м.;
Множество предимства:
- Отлично местоположение! На метри от мол Парадайс!
- На метри от МЕТРОСТАНЦИЯ Витоша!
- ПРОСТОРЕН!
- Нескриваема панорамна гледка!
- Хранителни хипермаркети и градски транспорт!
- В близост до едно от най-добрите лечебни заведения (болница Токуда);
- АКТ 16!;
- Отлично качество на изпълнение!
- Висок клас дограма;
- Висок клас сграда и луксозни общи части!
- Възможност за преустройство в ЧЕТИРИСТАЕН!!
Допълнително към апаратмента може да бъде закупен гараж на цени започващи от 42 000 евро. Има и по-големи гаражи, вкл. и ДВОЙНИ гаражи.
Същият апартамент може да се закупи и на 7 и 8 етаж!
ВНИМАНИЕ: СНИМКИТЕ НА ГОТОВАТА КУХНЯ С КУХНЕНСКИ ШКАФОВЕ СА ОТ ДРУГ – ИДЕНТИЧЕН И ВЕЧЕ ОБЗАВЕДЕН АПАРТАМЕНТ С ЦЕЛ ВИЗУАЛИЗАЦИЯ ЗА ДА МОЖЕ ПО-ЛЕСНО ДА СЕ ПРИДОБИЕ ПРЕДСТАВА КАК БИ ИЗГЛЕЖДАЛА ГОТОВА МОНТИРАНА КУХНЯ!
НОВ ДОМ 1 разполага с:
„Юридически Отдел“ – извършващ всички необходими юридически и технически проверки, организира всички етапи на сделката до нейното финализиране с нотариално прехвърляне на имота.
„Кредитен Отдел“ – съдействащ за отпускане на банков кредит при възможно най-добри условия за клиента, като избора на банка се определя спрямо нуждите и възможностите на клиента.
„Строително-Ремонтен Отдел“ – гарантиращ при нужда цялостен ремонт на вашето жилище до ключ при най-изгодни условия и цени.
НЯМА ЗНАЧЕНИЕ ДАЛИ ТЪРСИТЕ ИЛИ ПРОДАВАТЕ! ВСИЧКИ НАШИ КОНСУЛТАЦИИ СА БЕЗПЛАТНИ!
СВЪРЖЕТЕ СЕ С НАС И ЗАПОВЯДАЙТЕ В ОФИСА НА АГЕНЦИЯ НОВ ДОМ 1, ЗА ДА ВИ ПРЕДЛОЖИМ ТАЗИ И МНОГО ДРУГИ ОФЕРТИ. АГЕНЦИЯТА РАЗПОЛАГА С БОГАТ ИЗБОР ОТ ИМОТИ!






















