АКТ16 | НОВ КОМПЛЕКС | | ОТЛИЧНА ИНВЕСТИЦИЯ
Продаeт недвижимость в Болгарии / Двухкомнатная квартира, Пловдив, Смирненский, 73 кв. м.
АКТ16 | НОВ КОМПЛЕКС | | ОТЛИЧНА ИНВЕСТИЦИЯ
🌐 Повече оферти: www.novdom1.bg – Реф. №: 84394
Представяме Ви функционален двустаен апартамент, разположен в нов модерен жилищен комплекс в един от най-предпочитаните квартали на Plovdiv – Hristo Smirnenski. Районът предлага отлична инфраструктура, бърз достъп до центъра на града, паркове, университети, болници и множество търговски обекти.
Жилището е подходящо както за лично ползване, така и за инвестиция с цел отдаване под наем.
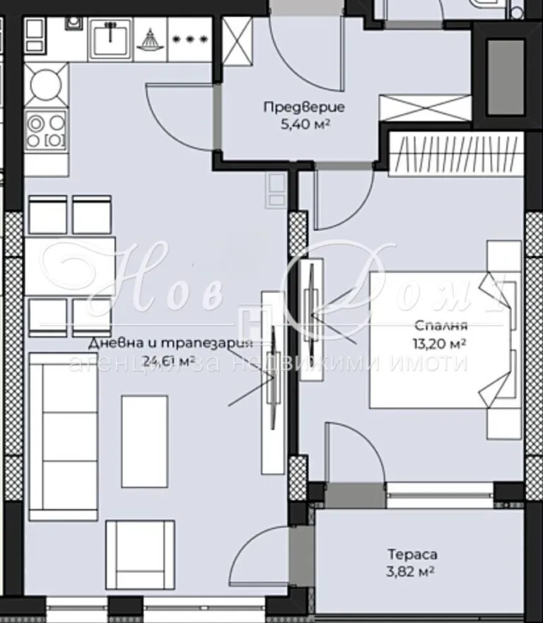
📐 Разпределение
🛋 Дневна с кухня и трапезария – 24,61 м²
Просторно и светло помещение с възможност за обособяване на удобна кухненска, трапезна и холна зона.
🛏 Спалня – 13,20 м²
🚪 Преддверие – 5,40 м²
🚿 Баня с WC
🌅 Тераса – 3,82 м²
⭐ Предимства
✔ Нова модерна сграда
✔ Отлична локация
✔ Функционално разпределение
✔ Светли помещения
✔ Подходящ за живеене или инвестиция
✔ Възможност за закупуване на паркомясто
📞 За повече информация и оглед:
Стоян Ташков – 0890 555 970
Телефон всеки ден от 08:30 до 22:30
Viber / WhatsApp – денонощно


