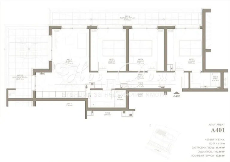
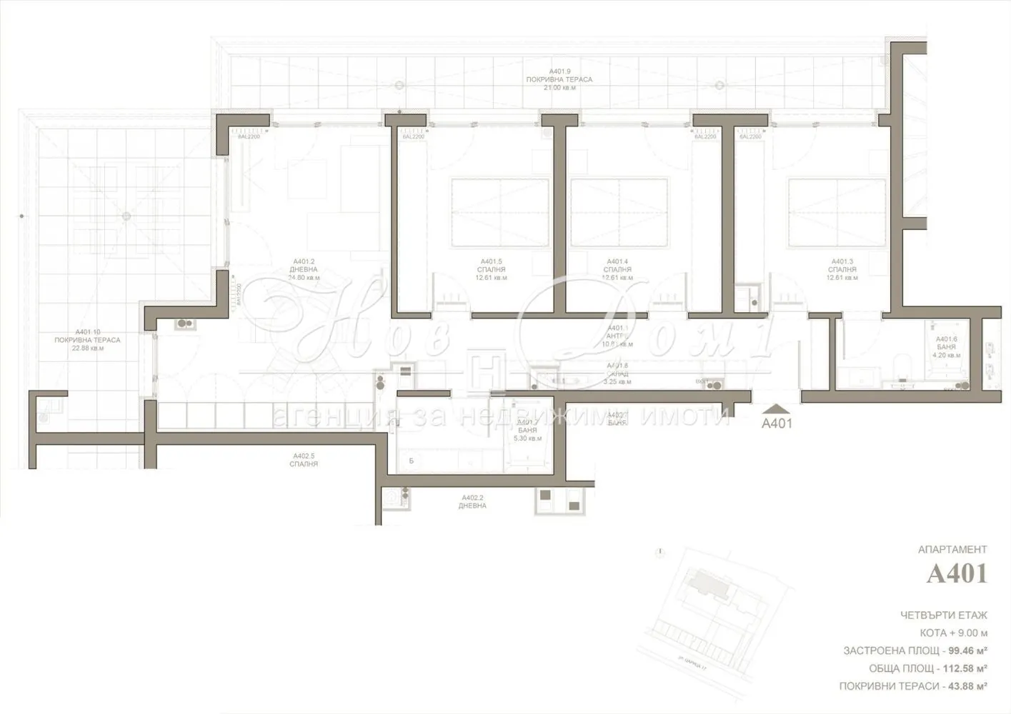
Дневна 25 м2! Тераси 44 м2! 3 непреходни спални! Правилни форми! Последен етаж!
Продаeт недвижимость в Болгарии / Четырехкомнатная квартира, СОФИЯ - Sofia, Горубляне, 157 кв. м.
Дневна 25 м2! Тераси 44 м2! 3 непреходни спални! Правилни форми! Последен етаж!
Представяме Ви отличен **4-стаен апартамент**, съчетаващ функционално разпределение, простор и комфорт, разположен в **София**. Имотът е подходящ както за семейно жилище, така и за дългосрочна инвестиция. Сградата е **ново строителство с акт. дата 2028 г.**, с **асансьор** и модерна визия. 🌆
🔹 **Основни характеристики на имота:**
– 🏠 **Тип имот:** 4-стаен апартамент
– 📍 **Локация:** София
– 💶 **Цена:** **245 870 €**
– 📐 **Обща площ:** **157 кв.м**
– 🛏️ **Спални:** **3**
– 🛋️ **Брой стаи:** **4**
– 🚿 **Бани с тоалетни:** **2**
– 🌞 **Балкони / тераси:** **2**
– 🛗 **Асансьор:** Да
– 🏗️ **Година на построяване:** **2028 г.**
🔹 **Разпределение:**
– 🍽️ **Светла дневна с площ 25 кв.м**, удобна за обособяване на кът за почивка и трапезария
– 🛏️ **Три самостоятелни спални по 13 кв.м**
– 🔲 **Без преход**, с отлично организирано вътрешно пространство
– 📏 **Правилни форми на помещенията**, които позволяват лесно и практично обзавеждане
– 🚿 **Две санитарни помещения**, осигуряващи удобство за цялото семейство
– 🌿 **Тераси с обща площ 44 кв.м**, идеални за сутрешно кафе, кът за отдих или градска градина
🔹 **Предимства на имота:**
– ✅ Просторно и функционално семейно жилище
– ✅ Отлична площ и удобно разпределение
– ✅ Нова сграда с модерни общи части
– ✅ Подходящ за лично ползване или инвестиция
– ✅ Асансьор за допълнителен комфорт
– ✅ Много добра естествена светлина и усещане за простор ☀️
🏙️ **За квартала:**
– Кварталът предлага отлична градска среда, с удобен достъп до основни пътни артерии, спирки на градски транспорт, магазини и учебни заведения. 🚇🛍️
– Районът е предпочитан за живеене поради комбинацията от спокойствие, ново строителство и бърза връзка с централните части на София. 🌳🏢
📞 Ако търсите **просторен нов дом в София с 3 спални, големи тераси и функционално разпределение**, този имот заслужава Вашето внимание! Свържете се за повече информация и оглед! 🔑
„НОВ ДОМ 1“ : Компанията разполага с : „Юридически Отдел“- извършващ всички необходими юридически и технически проверки на имота, организира всички етапи на сделката до нейното финализиране с нотариално прехвърляне на имота. „Кредитен Отдел“ – съдействащ за отпускане на банков кредит при възможно най-добри условия за клиента, като избора на банка се определя спрямо нуждите и възможностите на клиента. „Строително-Ремонтен Отдел“ – гарантиращ при нужда цялостен ремонт на вашето жилище до ключ при най-изгодни условия и цени.
„Консултант Недвижими Имоти „: Петър Христов – 0888925556




