Дневна 34м2 ! Гледка към Витоша ! Гаражи ! АКТ 14 ! Две Санитарни Помещения ! Две Тераси ! Затворен Комплекс !
Продаeт недвижимость в Болгарии / Трёхкомнатная квартира, СОФИЯ - Sofia, Бояна, 125 кв. м.
Дневна 34м2 ! Гледка към Витоша ! Гаражи ! АКТ 14 ! Две Санитарни Помещения ! Две Тераси ! Затворен Комплекс !
Референтен код №83394 в www.novdom1.bg!
Консултант недвижими имоти: Калоян Щерев, тел. 0894 555 630!
Крайна цена с включено ДДС!
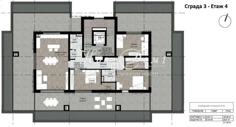
Апартаментът представлява: Голяма всекидневна около 33.7м2 с изход към тереса около 4.6м2; Спалня около 15м2 със собствена баня около 4.2м2 и тераса около 3.7м2; Втора спалня около 13.6м2; Баня и тоалетна около 4.2м2; Склад около 3.3м2; антре около 10м2. Разположен на 2ти от 4 етажа в уникална нова сграда в затворен комплекс разположена на ТОП локация в кв. Бояна. Безупречно изпълнение на сградата от доверни строители с луксозни общи части и озеленена част около сградата. В близост до Околовръстен път и бул. България, което му дава лесен достъп до останалата част на града.
Комплекса представлява: Безспорно предимство на комплекса е локацията – квартал „Бояна“ дава на своите обитатели съчетанието на природата – зелени пространства и непосредствеността на планина „Витоша“. Състои се от 4 сгради на по 4 етажа с озеленени площи около тях. Ще разполага с магазини и други удобства, както и два големи подземни паркинга, като е проектиран, така че в комплекса да няма никакво движение на коли.
- В момента на Акт 14
- Очакван Акт 15 до 1 г.
- Очакван Акт 16 веднага след Акт 15
Продажната му цена е 345 000€ с ДДС! Без значение от начина на плащане!
Схемата за плащане / освен по договаряне / е:
- 30% на Предварителен договор
- 30% на Акт 14
- 30% на Акт 15
- 10% на Акт 16
Схемата за плащане с банков кредит:
- 30% на Предварителен договор
- 50% на Удост. 181 по ЗУТ
- 10% на Акт 15
- 10% на Акт 16
Опция за подземни паркоместа и гаражи!
- Единични Гаражи от 36 000€ до 44 000€
- Двойни Гаражи от 44 400€ до 60 000€
Предлагаме още много имоти в същият и други подобни комплекси, звъннете за повече информация!
Най-високото качество на строителство и не само:
- Затворен Комплекс
- Контрол на достъпа
- Охрана
- СОТ
- Луксозни общи части
- Зелени площи около сградата
Забележка: Приложените снимки, схеми и визуализации са с цел добиване на максимална представа за имота.
Състояние: Жилището се завършва до БДС; Екстериорна блиндирана врата; Стени и Тавани – Гипсова мазилка; Под – Циментова замаска; Тераси –
хидроизолация и гранитогрес; Изградени ВиК и ОиВ.
Отлична локация:
На пешеходно разтояние от:
- Паркове
- Детски градини
- Квартални магазинчета
- Ресторанти
На близо разтояние с кола:
- Супермаркети
- Фитнеси
- На 10 мин от мол България
- бул. България и Околовръстен път
Нов Дом 1 – винаги най-доброто на пазара!








