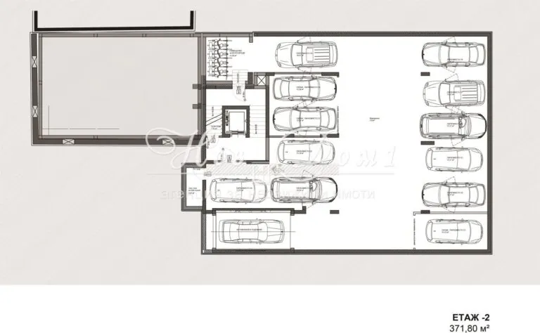
Двоен гараж, в нова сграда, с отделен идентификатор
Продаeт недвижимость в Болгарии / Паркировочное место, Варна, 27 кв. м.
реф. 83969
Нов Дом 1 представя на Вашето внимание двоен гараж в Центъра на гр. Варна – в район, с изключително натоварено търсене на паркоместа, синя зона, в близост до Графити и х-л Черно море. Гаражът е с ширина 4,95 м и дълбочина 5,18 м. Предназначен е за ДВЕ КОЛИ ЕДНА ДО ДРУГА, с врата – ролетна щора с дистанционно управление.
Разположен е в паркозала на подземен етаж -2, в сграда с акт 16. Достъпът е чрез платформа от висок енергиен клас и с наличен дизел-генератор за резервното й захранване.
Сграда от висок клас. Качествено изпълнение: отлична вентилация, отлична осветеност, а подът е с полимерна настилка, осигуряваща здравина, хигиеничност, лесна поддръжка, устойчивост на химически вещества и ниски температури, не пропуска влага.
Всичко това осигурява комфорт и сигурност при ежедневно ползване.
Ние сме с Вас до финализиране на сделката.
Ако имате въпроси или желаете оглед, съм на Ваше3 разположение.
Консултант Недвижими имоти – Женя Илиева – 0894 555 680



