ИСКЛЮЧИТЕЛЬНО СВЕТЛАЯ И ПАНОРАМНАЯ КВАРТИРА С ПРЕКРАСНЫМ ПЛАНИРОВАНИЕМ!
Продаeт недвижимость в Болгарии / Трёхкомнатная квартира, СОФИЯ - Sofia, Павлово, 91 кв. м.
ОЧЕНЬ СВЕТЛАЯ И ПАНОРАМНАЯ КВАРТИРА С ПРЕКРАСНЫМ РАСПРЕДЕЛЕНИЕМ! ОСНОВНОЕ ЮЖНОЕ ОКНО! КОМПАКТНЫЕ ПАРАМЕТРЫ С ПРАВИЛЬНЫМИ ФОРМАМИ КОМНАТ! ОТЛИЧНОЕ РАСПОЛОЖЕНИЕ! ПЕРЕД АКТОМ 16!
Подробная информация на www.novdom1.bg Реф.№ 77289
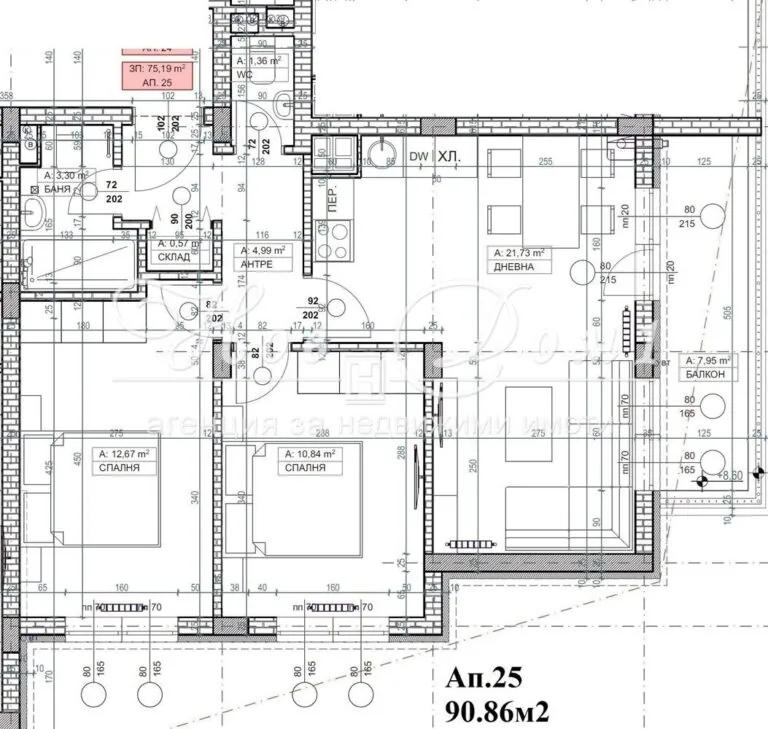
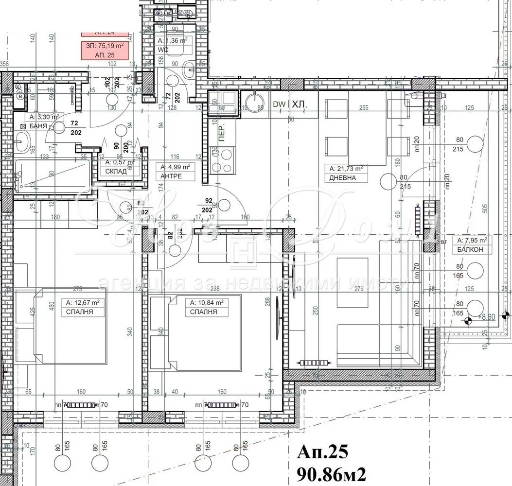
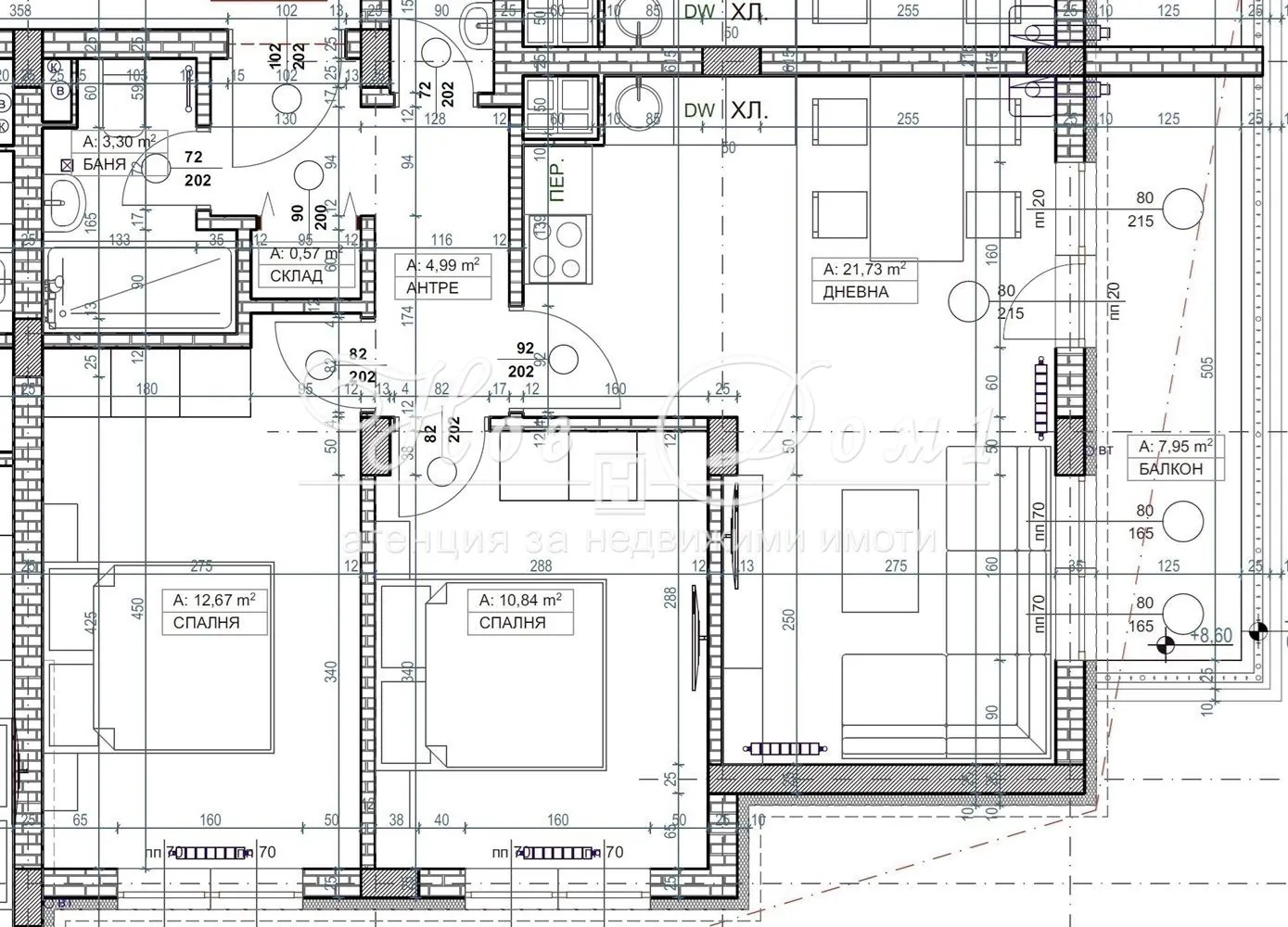
Недвижимость представляет собой: Входное антресоль, юго-восточный дневной блок с кухонной зоной более 22 кв.м. с выходом на балкон 8 кв.м., юго-западная родительская спальня около 13 кв.м., юго-западная детская комната около 11 кв.м., ванная комната с туалетом, второй туалет, а также кладовое помещение. Квартира расположена на 4-м этаже из 5, с окнами на юго-запад – юго-восток, без переходов и наклонов. Его отличная цена и расположение делают его прекрасным жильем как для проживания, так и для инвестиций с гарантированным доходом.
Возможность приобретения подземного гаража по цене 35 500€.
Отличное расположение: Недвижимость находится в одном из самых предпочтительных для проживания и инвестиций районов города София – кв. Павлово. Легкий и быстрый доступ к основным дорожным артериям, административным учреждениям, банкам, школам, детским садам, автобусным остановкам, детским площадкам, аптекам, торговым центрам, супермаркетам, косметическим студиям, ресторанам и туристическим достопримечательностям.
Состояние: Недвижимость сдается в соответствии с “БДС” – Экстерьерная бронированная дверь Solid. Пол: выровненная стяжка, подготовленная для укладки гранита, паркета или покрытия на ваш выбор. Стены: машинная обработка гипсовой штукатурки с турбозолом, подготовленная для покраски или обоев на ваш выбор. Санузлы: ручная цементная штукатурка, подготовленная для укладки плитки и керамической плитки. Водопроводно-канализационная установка “под ключ”. Электроустановка: розетки, выключатели и люстры, а также ПВХ окна. Установлена газовая система!
Примечание: Приложенные выше описания, фотографии, эскизы, архитектурные планы и визуализации являются иллюстративными и предназначены для того, чтобы дать вам максимально хорошее идеальное представление о общем виде и распределении недвижимости! Указанные материалы предоставлены и одобрены владельцем, они опубликованы с его согласия! Недвижимость предоставляется готовой к проживанию и имеет статус апартамента, что делает ее идеальной для инвестиций и сдачи в аренду!
«НОВЫЙ ДОМ 1»: Компания имеет: «Юридический отдел» – проводит все необходимые юридические и технические проверки недвижимости, организует все этапы сделки до ее завершения нотариальным переходом прав на недвижимость. «Кредитный отдел» – помогает в получении банковского кредита на наилучших условиях для клиента, выбор банка определяется исходя из потребностей и возможностей клиента. «Строительно-ремонтный отдел» – гарантирует при необходимости комплексный ремонт вашего жилья «под ключ» по наиболее выгодным условиям и ценам.
«Консультант по недвижимости»: Иван Димитров – 0890 555 820

























