AKT 16 ! ИЗКЛЮЧИТЕЛЕНО СВЕТЪЛ И ПАНОРАМЕН АПАРТАМЕНТ, С ЧУДЕСНО РАЗПРЕДЕЛЕНИЕ!
Продава / Тристаен апартамент, СОФИЯ, Павлово, 91 кв.м.
AKT 16 ! ИЗКЛЮЧИТЕЛЕНО СВЕТЪЛ И ПАНОРАМЕН АПАРТАМЕНТ, С ЧУДЕСНО РАЗПРЕДЕЛЕНИЕ! ОСНОВНО ЮЖНО ИЗЛОЖЕНИЕ! КОМПАКТНИ ПАРАМЕТРИ С ПРАВИЛНИ ФОРМИ НА СТАИТЕ! ОТЛИЧНА ЛОКАЦИЯ!
Детайлна информация на www.novdom1.bg Реф.№ 77289
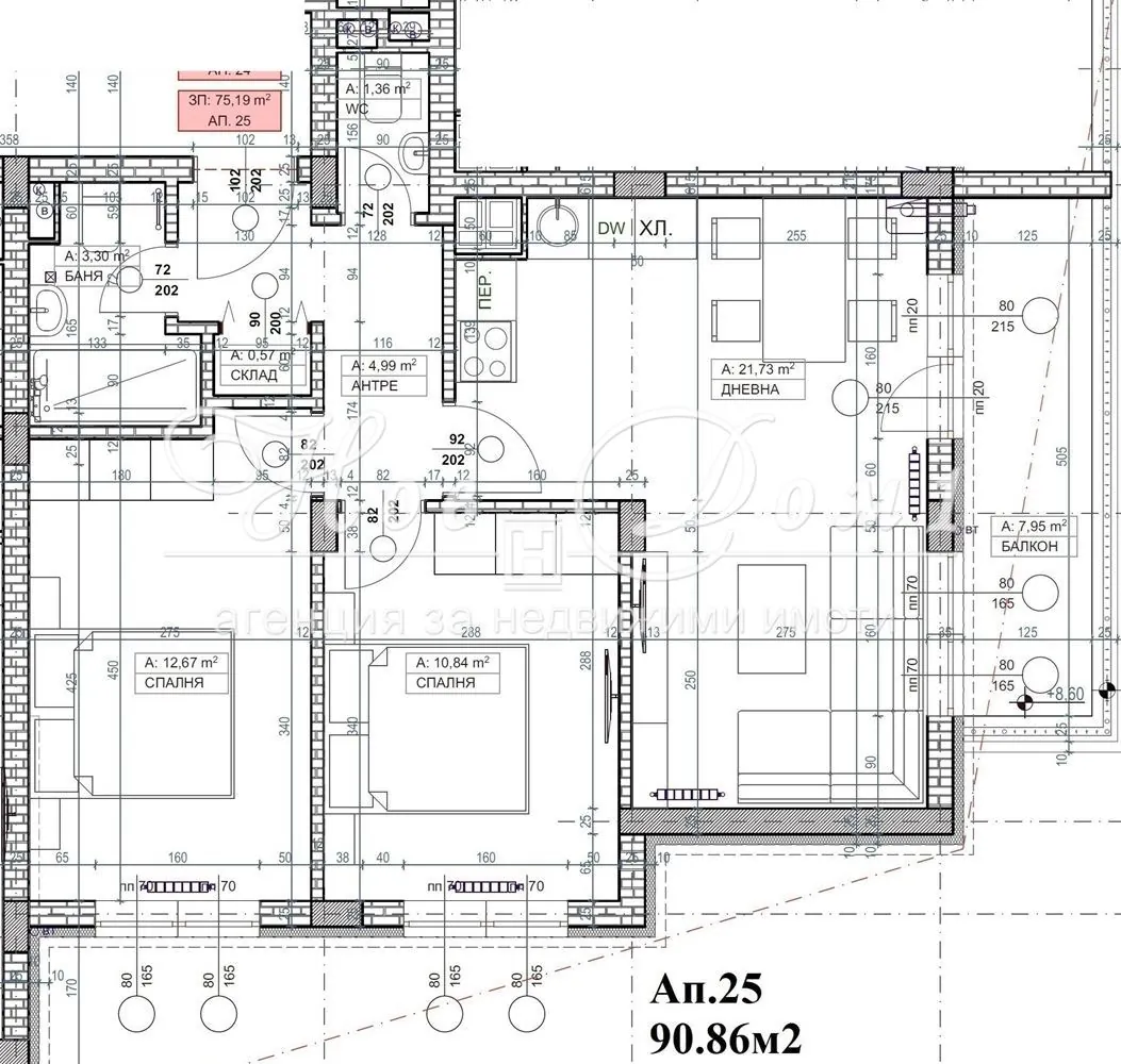
Имотът представлява: Входно антре, югоизточен дневен тракт с кухненска част над 22 кв.м. с излаз на балкон 8 кв.м., югозападна родителска спалня около 13кв.м., югозападна детска стая около 11кв.м., баня с тоалетна, втора тоалетна, както и складово помещение. Апартамента е разположен на 4-ри етаж от 5, с изложение югозапад – югоизток, без преход и без скосяване. Застроена площ :75,19кв.м. , Разгъната застроена площ : 90,83кв.м. Отличната му цена и локация, го правят чудесно жилище, както за живеене, така и за инвестиция със сигурен доход. Газифицирана сграда с Удостоверение за въвеждане в експлоатация (Акт 16) от 02.12.2025г.
Възможност за закупуване на подземен гараж с цена 37 500€.
Отлична Локация: Имота се намира в един от най-предпочитаните за живеене и инвестиция райони на град София – кв. Павлово. Лесен и бърз достъп до главни пътни артерии, административни учреждения, банки, училища, детски градини, автобусни спирки, детски площадки, аптеки, търговски центрове, супермаркети, козметични студия, заведения и туристически атракции.
Състояние : Имотът се издава съгласно „БДС“ – Екстериорна блиндирана врата Solid. Под : нивелирана замазка подготвена за полагане на гранитогрес, паркет или настилка по Ваш избор. Стени : машинно обработена гипсова мазилка с турбозол подготвена за боя или тапет по ваш избор. Мокри Помещения : ръчно обработена циментова мазилка подготвена за полагане на фаянс и теракота. ВиК инсталация „на тапа“. ЕЛ инсталация : контакти, ключ и фасонки и ПВЦ дограма. Изградена газова инсталация!
Забележка: Приложените по-горе описания, снимки, скици, архитектурни разпределения и визуализации са предоставени и одобрени от собственика, същите са публикувани с неговото съгласие ! Имотът е със статут на апартамент, което го прави идеален за инвестиция и отдаване под наем !
„НОВ ДОМ 1“ : Компанията разполага с : „Юридически Отдел“- извършващ всички необходими юридически и технически проверки на имота, организира всички етапи на сделката до нейното финализиране с нотариално прехвърляне на имота. „Кредитен Отдел“ – съдействащ за отпускане на банков кредит при възможно най-добри условия за клиента, като избора на банка се определя спрямо нуждите и възможностите на клиента. „Строително-Ремонтен Отдел“ – гарантиращ при нужда цялостен ремонт на вашето жилище до ключ при най-изгодни условия и цени.
„Консултант Недвижими Имоти„ : Иван Димитров – 0890 555 820

























