Луксозен пентхаус с панорамна тераса | До Гребната база, Смирненски | С АКТ16
Продаeт недвижимость в Болгарии / Трёхкомнатная квартира, Пловдив, Смирненский, 200 кв. м.
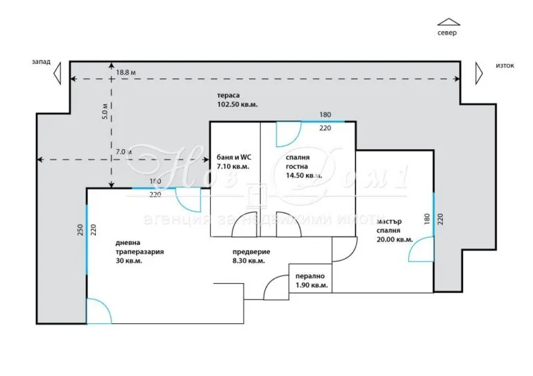
Луксозен пентхаус с панорамна тераса | До Гребната база, Смирненски | С АКТ16
📍 Локация: Смирненски,Гребна база | 💶 Цена: 287 999 € | 🔑 Реф. № 82945
Консултант Недвижими Имоти: Николас Екман 📞 +359895501036
🏡 Основни акценти:
• Тип: 3-стаен пентхаус
• Обща площ: 200 кв.м (100 кв.м жилищна + 100 кв.м панорамна тераса)
• Етаж: 6 от 6
• Изложение: изток / запад / север
• Строителство: Акт 16 (2024)
🌟 Характеристики на имота:
• Височина на таваните 3 м – усещане за свобода и простор
• Мастър спалня с отличен размер
• Втора просторна стая – подходяща за детска, кабинет или гостна
• Светла и отворена всекидневна с директен достъп до терасата
• Обширна баня и мокро помещение / килер
• Удобно антре с възможност за гардеробна зона
• Прозорци 2.10 м височина – естествена светлина през целия ден
• Достъп до терасата от всички помещения
• Избено помещение към апартамента
🚗 Допълнителни удобства:
• Възможност за закупуване на подземен гараж (29 кв.м) с отделен електромер
• Комплекс от затворен тип с контролиран достъп и видеонаблюдение
💎 Предимства:
• Топ локация – само на 5 минути пеша от Гребната база
• Тишина, зеленина и престиж – идеален баланс между природа и град
• Високи тавани и панорамни прозорци – изключителен лукс и усещане за простор
• Сигурност, комфорт и стил – имот без компромиси
Съдържа илюстрирана снимка.
📞 Вашият ход:
➡️ Свържете се с нас за оглед и открийте елегантния живот до Гребната база!
Консултант Недвижими Имоти: Николас Екман
📱 Телефон / Viber / WhatsApp: +359895501036
🎁 БОНУС: Получавате безплатна консултация и пазарен анализ при всяко запитване!
 


 

