НОВА МОДЕРНА КЪЩА С ПАНОРАМНА ГЛЕДКА КЪМ ВАРНА, ЕЗЕРОТО И МОРЕТО
Продаeт недвижимость в Болгарии / Дома, Варна, м-т Пчелина, 143 кв. м., Двор: 400 кв. м.
НОВА МОДЕРНА КЪЩА С ПАНОРАМНА ГЛЕДКА КЪМ ВАРНА, ЕЗЕРОТО И МОРЕТО
Детайлна информация на : www.novdom1.bg – Реф. №: 83292
„Консултант Недвижими Имоти „ : Георги Владков – 087 90 90 400
📍 Локация: м-т Пчелина само на 10 минути с автомобил до центъра на Варна. В района има супермаркет на пешеходно разстояние и удобен достъп до основни пътни артерии.
🏗️ Имотът:
Разположен върху парцела от 400 кв.м
Предвидени две паркоместа в двора 🚗🚗
Модерен архитектурен стил, съчетаващ функционалност и комфорт
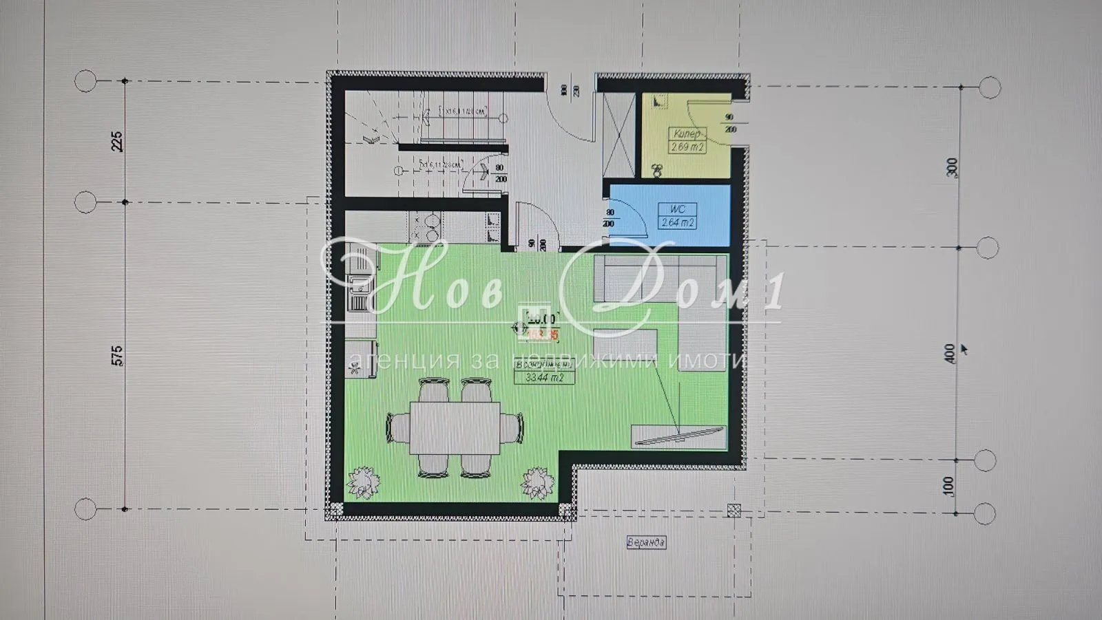
🏠 Разпределение:
Първи етаж:
Входно антре
Просторна и светла дневна с кухненски кът и място за трапезария 🍽️
Санитарно помещение 🛁
Килер/складово помещение
Вътрешно стълбище към втория етаж
Втори етаж:
Три спални, като родителската спалня е със собствена баня и тераса
Втора баня с тоалетна
🌱 Дворът ще бъде озеленен с райграс и оборудван с автоматична поливна система.
🏗️ Къщата се продава по БДС, като има възможност за завършване до ключ по индивидуален вкус.
Отлична Локация : Имотът се намира в един от най-предпочитаните за живеене и инвестиция райони на град Варна. Лесен и бърз достъп до главни пътни артерии, административни учреждения, банки, училища, детски градини, автобусни спирки, детски площадки, аптеки, търговски центрове, супермаркети, козметични студия, заведения и туристически атракции.
Строителство : Висококачествено „Ново Строителство“
Отлична Схема на плащане: 40% капаро ; 30% при снабдяване сградата с образец : „АКТ 14“ ; 20% при снабдяване сградата с образец „АКТ 15“ ; 10% при снабдяване сградата с „АКТ 16“ (Разрешително за Въвеждане в Експлоатация)
„НОВ ДОМ 1“ : Компанията разполага с : „Юридически Отдел“- извършващ всички необходими юридически и технически проверки на имота, организира всички етапи на сделката до нейното финализиране с нотариално прехвърляне на имота. „Кредитен Отдел“ – съдействащ за отпускане на банков кредит при възможно най-добри условия за клиента, като избора на банка се определя спрямо нуждите и възможностите на клиента. „Строително-Ремонтен Отдел“ – гарантиращ при нужда цялостен ремонт на вашето жилище до ключ при най-изгодни условия и цени.
„Консултант Недвижими Имоти „ : Георги Владков – 087 90 90 400




