Новострояща се къща в м. Сълзица
Продаeт недвижимость в Болгарии / Дома, Варна, м-т Сълзица, 179 кв. м., Двор: 300 кв. м.
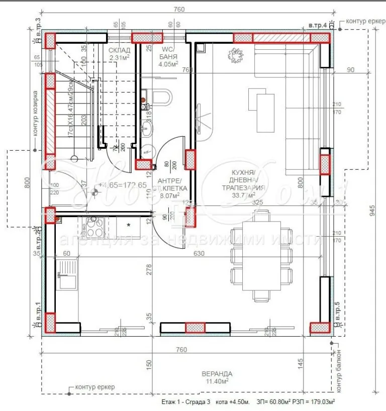
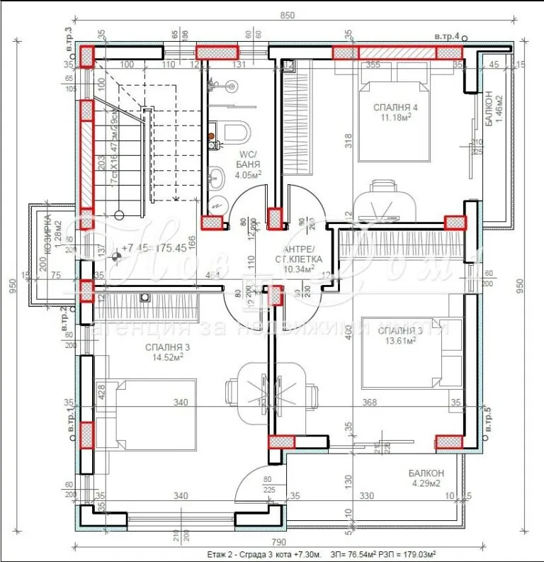
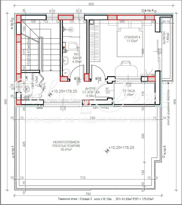
Къщата е с РЗП от 179,03 кв.м, на три етажа със следното разпределение:
* на първи етаж са разположени: просторна всекидневна с трапезария и кухня, които имат излаз към слънчева веранда, антре, баня с тоалетна, вътрешни стълбища към ниво 2;
* на втори етаж са разположени: три самостоятелни спални, тераса към две от спалните, балкон към третата спалня, антре, баня с тоалетна, вътрешни стълбища към ниво 3;
* на трети етаж са разположени: спалня, голяма панорамна тераса, перално помещение, антре, баня с тоалетна.
Имотът е с южно изложение и панорама.
Къщата ще бъде присъединена към мрежата на ВиК и към мръсен канал.
Прилежащото дворно място е около 300 кв.м, като към къщата има и две паркоместа.
Атрактивна локация, лесен и бърз достъп по асфалтирана улица, на около 300 м от бул. Трети Март, в непосредствена близост до спирки на градския транспорт, детски градини, училища и големи вериги магазини.







