ПЕНТХАУС! ТОП КОМПЛЕКС! 20% СЕГА И ОСТАТЪКА СЛЕД АКТ16! МЕТРОСТАНЦИЯ! ЕДИН ПО РОДА СИ!
Продаeт недвижимость в Болгарии / Многокомнатная, СОФИЯ - Sofia, Сердика, 302 кв. м.
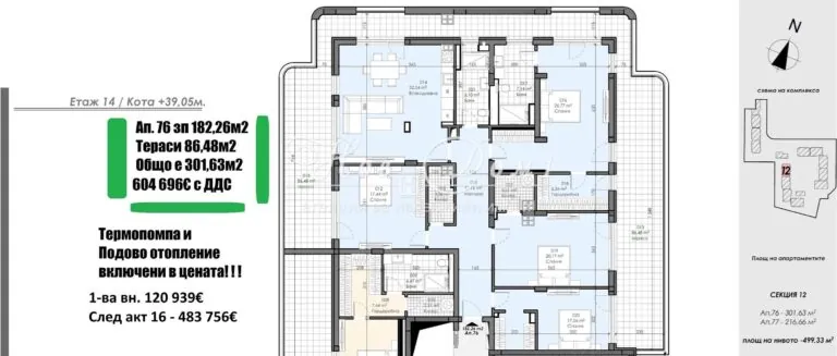
Плати 20% сега и остатъка след Акт 16!
Огромна дневна 32,54м², Родителска спалня 26,77м² с гардеробна + още 3 спални!
Юг и Изток! До Парк, Мол и Метростанция!
Референтен код №82244 в www.novdom1.bg!
Консултант недвижими имоти: Петър Кирилов, тел. 0892 200 970!
Крайна цена с включено ДДС – 604 696€! Без индексации!
Обади се сега за този или друг наш ексклузивен имот в комплекс Охридско езеро парк!
Апартаментът представлява:
Широко входно Антре и Коридор 17,16м², Просторен и светъл Дневен тракт + Кухн. бокс 32,54м² с излаз към голяма тераса 86,48м²,
Родителска спалня 26,77м² с гардеробна 6,34м², още 3 спални (20,17м²; 17,44м²; 17,26м²),
две бани с тоалетни, килер и мокро помещение.
Обща площ 301,63м², от които застроена площ 182,26м² и тераси 86,48м².
Разположен е на 14-ти етаж в един от най-хитовите комплекси в централна част – Охридско езеро парк.
Безупречно качествено изпълнение от водеща строителна фирма – Главболгарстрой!
Статут Апартамент, което го прави отличен избор за живеене или инвестиция.
Възможна покупка с банков ипотечен кредит!
Продажната му цена е 604 696€ с ДДС!
– Първа вноска при подписване на договор – 120 939€
– Останалата сума 483 756€ се заплаща след Акт 16!
Най-високото качество на строителство и не само:
– Термопомпа и подово отопление включени в цената;
– Заготовка за климатик/мултисплит;
– Височина на помещенията – мин. 2,65 м;
– Балкони – гранитогрес, парапет алуминий и стъкло;
– Вентилируема фасада с минерална вата;
– Алуминиева дограма с троен стъклопакет;
– Озеленен вътрешен двор, детска площадка, ресторант-градина;
– Управление и поддръжка 24/7 с фирма на инвеститора.
Състояние:
Завършва се по БДС, с възможност за До ключ.
Сградата:
Луксозно завършени общи части, алуминиеви парапети, асансьори 1,6м/сек., домофонна система за контролиран достъп.
Забележка: Приложените снимки, схеми и визуализации са с цел добиване на максимална представа за имота.
Отлична локация:
– В близост до центъра на София;
– На тиха, зелена улица;
– Пешеходно разстояние до Парк и Аквапарк „Възраждане“, МОЛ София, Метростанция „Опълченска“,
болници, детски градини, училища, супермаркети;
– Отлична транспортна обезпеченост – автобуси, трамваи, тролеи и метро.
Уважаеми клиенти, само от агенция Нов Дом 1 получавате преференциални цени и условия за този и други имоти в сградата.
Нов Дом 1 – винаги най-доброто на пазара!





