Превосходная новая 4-комнатная квартира в живом и развитом районе Подуяне, София.
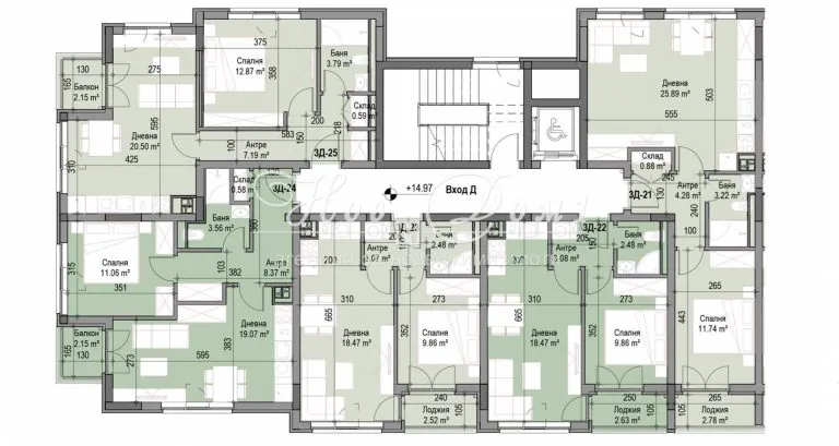
Продаeт недвижимость в Болгарии / Четырехкомнатная квартира, СОФИЯ - Sofia, Подуяне, 140 кв. м.
🏢✨ Продаем великолепную новую 4-комнатную квартиру в оживленном и хорошо развитом районе Подуяне, София. Этот просторный и функциональный жилой блок – идеальное место для вашего нового начала. Наслаждайтесь современным стилем и удобствами всего в нескольких шагах от всего необходимого!
### Основные характеристики недвижимости:
– **Тип недвижимости**: 4-комнатная квартира (новое строительство)
– **Местоположение**: София, район Подуяне
– **Цена**: 238 050 €
– **Общая площадь**: 140 кв.м
### Простор и функциональность:
– **Количество комнат**: 4
– **Количество спален**: 3 🛏️🛏️🛏️
– **Количество балконов**: 2 🌿
– **Количество ванных комнат с туалетами**: 2 🚿🚽
### Дополнительные удобства:
– **Квартира с чередованием**: Легкий доступ между помещениями для большей эффективности и удобства.
🌟 Эта квартира сочетает в себе современный дизайн с функциональностью и комфортом. Светлые комнаты и высококачественные материалы придают жилью ощущение роскоши и уюта. Балконы предоставляют прекрасные возможности для отдыха на свежем воздухе, глядя на динамичный город.
### О районе:
Подуяне – один из самых желанных районов для проживания в Софии благодаря своему расположению недалеко от центра и наличию множества общественных услуг и удобств. Этот квартал известен своим хорошим транспортным сообщением, которое облегчает передвижение по городу. 🚌🚋
«НОВЫЙ ДОМ 1»: Компания предоставляет: «Юридический Отдел» – осуществляющий все необходимые юридические и технические проверки недвижимости, организующий все этапы сделки до ее завершения нотариальным переходом права собственности. «Кредитный Отдел» – помогающий в получении банковского кредита на наилучших условиях для клиента, выбор банка определяется исходя из потребностей и возможностей клиента. «Строительно-Ремонтный Отдел» – обеспечивающий при необходимости комплексный ремонт вашего жилья под ключ по наиболее выгодным условиям и ценам.
«Консультант по Недвижимости»: Петър Христов – 0888925556





