Рядка възможност за бутиков дом на 280 м от парк „Заимов“. Престижна локация за взискателни купувачи.
Продаeт недвижимость в Болгарии / Трёхкомнатная квартира, СОФИЯ - Sofia, Оборище, 118 кв. м.
Рядка възможност за бутиков дом на 280 м от парк „Заимов“. Престижна локация за взискателни купувачи.
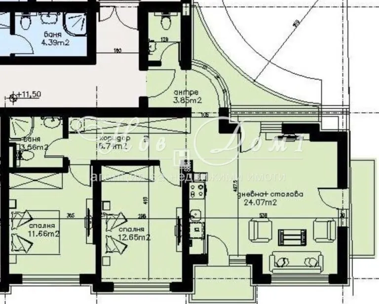
– Тип имот: 3-стаен (дневна с кухненски бокс + 2 спални)
– Обща площ: 118.46 кв.м 📐 (Застроена площ: 96.52кв.м.)
– Балкони: 3 тераси за утринно кафе и вечерни гледки
– Бани/тоалетни: 1 баня с тоалетна + 1 отделна тоалетна
– Мазе: 1.98 кв.м. с височина на тавана около 3,50м. (включено)
– Асансьор KONE
– Паркиране: възможност за подземно паркомясто на цена 50 000€ без ДДС.
– Сграда е пред Акт 15 : малка бутикова, само 12 апартамента – повече тишина, комфорт и уединение
Предимства и материали:
– Луксозно изпълнение с тухли Wienerberger – топло- и шумоизолация от висок клас
– Алуминиева дограма – модерна визия, издръжливост и отлична енергийна ефективност
– Парапери от ковано желязо
– Покрив от австрийски дървени греди – стабилност, дълговечност и натурален комфорт
– Съвременни стандарти за строителство с луксозни общи части
- Отопление на ТЕЦ
- Монтирани трасета за климатици
- Допълнителна инсталация за бойлер на електричество
Локация:
– На 280 м от парк „Заимов“ – перфектно за разходки, спорт и семеен отдих.
– В близост до културни институции, отличен градски транспорт, учебни заведения, болници, магазини и др.
Цена: 533 070 евро без ДДС
Идеален избор за дом или инвестиция с висока ликвидност и престижен адрес. Свържете се за планове, оглед и детайли.
Квартал Оборище е един от най-ценените централни райони на София – поддържани улици, класическа архитектура и елитна среда.
Предлага спокойствие до парк „Заимов“, бърз достъп до центъра, културни събития, елитни училища и отлични кафенета и ресторанти.










