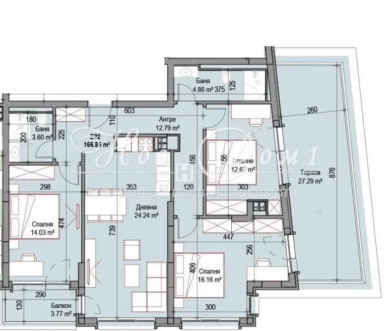
Тераса 27 м2! АКТ 14! Три непреходни спални!
Продаeт недвижимость в Болгарии / Четырехкомнатная квартира, СОФИЯ - Sofia, Подуяне, 167 кв. м.
Три непреходни спални! Тераса 27 м2! АКТ 14! Алуминиева дограма!
✨ **Основни характеристики на имота:**
– 🛋️ **Брой стаи:** 4
– 🛏️ **Брой спални:** 3 (всички непреходни за максимален комфорт и уединение)
– 🚿 **Брой бани с тоалетни:** 2
– 🌅 **Просторна тераса:** 27 кв.м – идеална за релакс на открито с изглед към града
– 🏗️ **Статус на строителство:** АКТ 14 – бърз напредък и скоро финализиране
🏙️ **Квартал Подуяне**: Отлично съчетание на градска динамика и уют! Разположен в близост до ключови транспортни линии, множеството зелени паркове и детски площадки, както и богат избор от магазини и заведения. Животът в Подуяне ви предлага всичко необходимо за модерен и комфортен градски живот.
🎯 Този имот е перфектният избор за семейства, които търсят комфорт и стил в нов, съвременен дом. Не пропускайте възможността да станете част от този обновен и атрактивен квартал в София! Свържете се с нас за повече информация и огледи!
Състояние : Имотът се издава съгласно „БДС“ – Екстериорна блиндирана врата. Под : нивелирана замазка подготвена за полагане на гранитогрес, паркет или настилка по Ваш избор. Стени : машинно обработена гипсова мазилка с турбозол подготвена за боя или тапет по ваш избор. Мокри Помещения : ръчно обработена циментова мазилка подготвена за полагане на фаянс и теракота .ВиК инсталация „на тапа“. ЕЛ инсталация : контакти, ключ и фасонки.
„НОВ ДОМ 1“ : Компанията разполага с : „Юридически Отдел“- извършващ всички необходими юридически и технически проверки на имота, организира всички етапи на сделката до нейното финализиране с нотариално прехвърляне на имота. „Кредитен Отдел“ – съдействащ за отпускане на банков кредит при възможно най-добри условия за клиента, като избора на банка се определя спрямо нуждите и възможностите на клиента. „Строително-Ремонтен Отдел“ – гарантиращ при нужда цялостен ремонт на вашето жилище до ключ при най-изгодни условия и цени.
„Консултант Недвижими Имоти „: Петър Христов – 0888925556
 












 
 
 
 
 
 
 
 
 
 
 

