ТОП ИНВЕСТИЦИЯ! ЗА НАЕМ! ДО МЕТРО И БИЗНЕС ПАРК!
Продаeт недвижимость в Болгарии / Двухкомнатная квартира, СОФИЯ - Sofia, Младост 4, 73 кв. м.
ОФЕРТА: 85557
КОНСУЛТАНТ НЕДВИЖИМИ ИМОТИ: РОМАН ЮСЮМБЕЛИ 0899 366 556
ИЗТОК • НОВО СТРОИТЕЛСТВО • ЗАТВОРЕН КОМПЛЕКС • ВИСОК КЛАС СГРАДА
Предлагаме за продажба апартамент 33 в модерен затворен жилищен комплекс – проект, който съчетава лукс, качество и отлична локация в една от най-предпочитаните части на София.
Сградата е позиционирана в близост до бул. Александър Малинов, Околовръстен път, IKEA, Ring Mall и ключови търговски и бизнес зони.
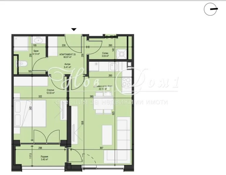
Жилището е ситуирано на 4-ти етаж, с:
- Застроена площ: 60.97 кв.м
- Общи части: 11.95 кв.м
- Обща площ: 72.92 кв.м
СХЕМА НА ПЛАЩАНЕ:
ПД: 61150 евро
АКТ 15: 121485 евро
АКТ 16: 17355 евро
🏠 РАЗПРЕДЕЛЕНИЕ:
✔️ Дневна с кухненски бокс – 22.13 кв.м
✔️ Спалня – 12.33 кв.м
✔️ Баня с тоалетна – 4.13 кв.м
✔️ Антре – 5.41 кв.м
✔️ Склад – 3.03 кв.м
✔️ Лоджия – 3.45 кв.м
👉 Един от най-добрите двустайни като функционалност – правилни форми и максимално използване на площта.
📍 ЛОКАЦИЯ, КОЯТО РАБОТИ ЗА ТЕБ
✔️ Бърз достъп до Околовръстен път
✔️ IKEA, Ring Mall, Decathlon
✔️ В близост до бизнес сгради и офиси
✔️ Отлична инфраструктура и транспорт
👉 Район с постоянен интерес и растящи цени.
🏗️ СГРАДА ОТ НОВО ПОКОЛЕНИЕ
✔️ Вентилируема фасада с каменна вата
✔️ Алуминиева дограма с троен стъклопакет
✔️ Високоскоростни асансьори KONE
✔️ Отлична шумоизолация
✔️ Луксозни общи части и дизайнерско изпълнение
✔️ Контролиран достъп + видеонаблюдение + жива охрана
✔️ Отопление с термопомпи + опция за подово отопление
🌿 КОМФОРТ И СРЕДА
✔️ Озеленени площи и алеи
✔️ Затворен комплекс с усещане за спокойствие
✔️ Кътове за отдих
🚗 ПАРКИРАНЕ
✔️ Подземни гаражи и паркоместа
✔️ Паркоместа на терен
✔️ Възможност за платформи
💡 ЗА КОГО Е ТОЗИ ИМОТ?
✔️ За инвестиция – много лесен за отдаване
✔️ За първо жилище
✔️ За двойка или младо семейство
✔️ За хора, които искат ново строителство без компромис
💰 ЦЕНА: 199 990 евро
⚡ 👉 Този тип апартаменти се продават най-бързо.
Ако го гледаш – значи вече има още хора като теб.
📩 Свържи се с мен за оглед.
Уважаеми клиенти, само и единствено от агенция Нов Дом 1 можете да получите преференциални условия за покупката на този и други имоти в комплекса.
Нов Дом 1 – винаги най-доброто на пазара!
📞 Консултант недвижими имоти: Роман Юсюмбели
📱 0899 366 556 ОФЕРТА: 85557








