ЦЕНА БЕЗ АНАЛОГ/ 2-стаен/ ТОП Локация/ Паркомясто
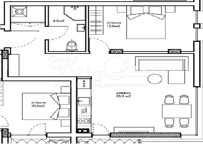
Продаeт недвижимость в Болгарии / Двухкомнатная квартира, Варна, Възраждане 1, 60 кв. м.
€ 102394
|
Цена за кв. м.: € 1 707 /m2
Тип строительства: керпич
Екстри: асансьор
Год постройки: 2027
Экспозиция: Юг
Спальни: 1
Стаи: 2
Террасы: 1
Комбинирани баня с тоалетна: 1
Реф. №: 85388
Позвоните
Описание
Ваш брокер







