BOUTIQUE BUILDING IN A GREEN AND PICTURESQUE ENVIRONMENT – MIDDLE FLOOR – Living room 37 sq.m./Bedroom 19 sq.m./Bedroom 17 sq.m.
For Sale / 2 Bedroom apartment, Sofia, v.z. Kinocentara, 155 sq.m.
BOUTIQUE BUILDING IN A GREEN AND PICTURESQUE ENVIRONMENT – MIDDLE FLOOR – Living room 37 sq.m./Bedroom 19 sq.m./Bedroom 17 sq.m.
Detailed information at: www.novdom1.bg – Ref. No.: 71314
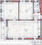
The Property Comprises: Entrance hall; bathroom with toilet; spacious living area of almost 40 sq.m. with a kitchenette, space for soft furniture and dining with access to a terrace and an adjacent green yard, a non-transitional bedroom of 17 sq.m. and a second bedroom of 19 sq.m. with access to a terrace shared with the living room. Built-up area – 101.69 sq.m. Total built-up area – 126.64 sq.m. as well as a 10.29 sq.m. roof terrace and a 13.76 sq.m. yard. The apartment comes with adjacent land and a storage room of 8.07 sq.m. Option for a parking space at prices starting from €25,000.
Condition: The property is rented according to the “BDS” – Exterior armored door. Floor: leveled screed prepared for laying granite, parquet, or flooring of your choice. Walls: machine-treated gypsum plaster with turbozol prepared for painting or wallpaper of your choice. Wet rooms: manually treated cement plaster prepared for laying tiles and terracotta. Plumbing and electrical installations “on point”. Electrical installation: sockets, switches, and fittings.
Excellent Location: The property is located in one of the most preferred residential and investment areas in Sofia – near the Cinema Center at the mouth of the Drenovitsa River. Easy and quick access to main roads, schools, kindergartens, bus stops, restaurants, and tourist attractions.
Construction: High-quality “New Construction” – a reinforced concrete structure meeting all seismic standards. Monolithic masonry made with the highest grade Austrian ceramic blocks from “Wienerberger” – Porotherm 25 N+F Light. High-quality joinery with 4-season double glazing. Thermal insulation system – mineral wool. Silicate-silicone facade plaster with elements of Etalbond and stone cladding.
The Building: Luxuriously finished common areas with natural granite, wrought iron railings, hydraulic elevator with “bottom” machine ensuring the silent operation of the facility. Facade cladding with natural stone. Intercom system for controlled access to the building and video surveillance.
Note: The above distributions and visualizations are provided and approved by the owner, and are published with his consent! The property is issued according to BDS and has the status of an apartment, making it ideal for investment and rental!
“NEW HOME 1”: The company has: “Legal Department” – performing all necessary legal and technical checks of the property, organizing all stages of the deal until its finalization with a notarial transfer of the property. “Credit Department” – assisting in obtaining bank loans under the best possible conditions for the client, with the choice of bank determined according to the client’s needs and possibilities. “Construction-Renovation Department” – ensuring comprehensive renovation of your home if needed, at the most favorable conditions and prices.
“Real Estate Consultant”: Ivan Dimitrov – 0890 555 820












