GREEN SPACE 2
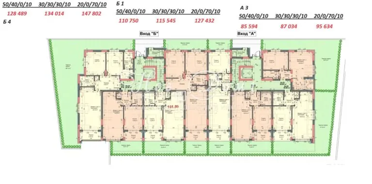
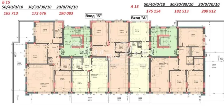
For Sale / Building, Varna, Възраждане 3
€ 0
|
Price per sq.m: € 0 /m2
Construction Type: bricks
Екстри: в строеж
Етап на строителсто: cat 0
Year of Construction: 2025
Total Floors: 4
Реф. №: 78131
Call
Description
Your Broker









