TOP PRICE! No Transition! Correct Forms!
For Sale / 1 Bedroom apartment, Sofia, Serdika, 57 sq.m.
1. **Top price**: Looking for a property that offers an optimal price compared to market value and the qualities it provides.
2. **Top investment**: A property that has the potential to increase in value over time, or that can generate a good rental income.
3. **Middle floor**: Properties on middle floors are usually preferred because they offer better insulation from external conditions (such as noise from outside or temperature changes) and easier access.
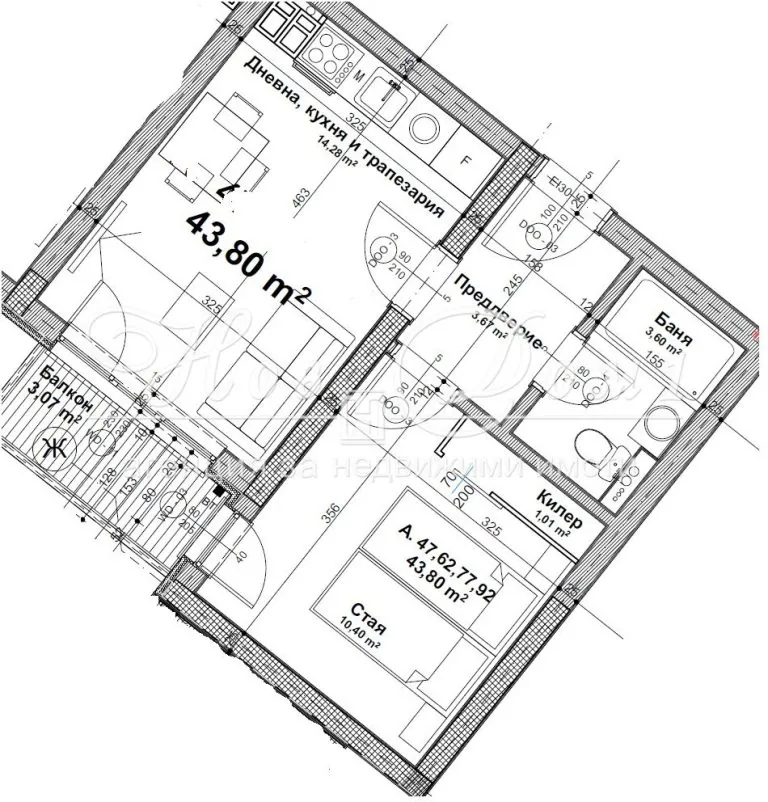
4. **No passage**: The apartment does not have passage rooms, meaning that the rooms are separate and accessible from the corridor.
5. **No exterior walls**: This usually means that the property is better insulated and more energy-efficient, as there are no walls fully exposed to external atmospheric conditions.
6. **No discounts**:
7. **Proper room shapes**: The rooms have comfortable and functional shapes that allow for practical furnishing and efficient use of space.
“NEW HOME 1“: The company has: “Legal Department” – performing all necessary legal and technical checks of the property, organizing all stages of the transaction until its finalization with a notarial transfer of the property. “Credit Department” – assisting in obtaining a bank loan under the best possible conditions for the client, with the choice of bank determined according to the client’s needs and possibilities. “Construction-Renovation Department” – ensuring comprehensive renovation of your home if needed, at the most favorable conditions and prices.
“Real Estate Consultant”: Petar Hristov – 0888925556




