Two-Storey/ Turnkey/ Spacious Rooms/ Two Parking Spaces/ Gated Complex/ Prime Location
For Sale / House, Varna, m-t Trakata, 210 sq.m., Yard: 320 sq.m.
€ 544000
|
Price per sq.m: € 2 590 /m2
Construction Type: bricks
Състояние на имота: Освежен
Видове отопление: Електричество
Екстри: луксозен имот, с паркомясто, масивна външна врата, входа се заключва
Furniture: partly furnished
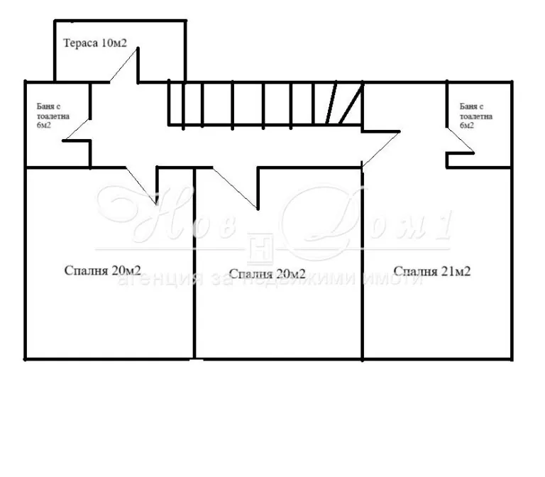
Bedrooms: 3
Стаи: 4
Terraces: 2
Бани: 2
Тоалетни: 2
Комбинирани баня с тоалетна: 2
Ново строителство: Yes
Реф. №: 80782
Call
Description
Your Broker









