Запад! Дневна 22м2 и Спалня 12м2! Чудесно Разпределение!
For Sale / 1 Bedroom apartment, Sofia, Malinova dolina, 63 sq.m.
Запад! Дневна 22м2 и Спалня 12м2! Чудесно Разпределение!
Референтен код № 82670 в www.novdom1.bg!
Консултант недвижими имоти: Калоян Николов, тел. 0890 555 960!
Основни предимства на имота:
- Западно изложение;
- Добра Локация с предвиден лесен достъп, както от Околовръстното, така и от ул. Едуард Генов;
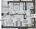
- Дневна 21.60кв.м. и НЕпреходна Спалня по 12,40м2;
- Чудесно разпределение;
- Без скосове, Без отстъпи, Светъл имот;
- Опция Гараж или Паркомясто!
Жилището представлява: Входно Антре 4.80м2, с място за Портманто, Западна Дневна с Кухн. Бокс – 22.60 кв.м. и с излаз към Тераса, НЕпреходна Спалня с площ 12.39 кв.м. отново с излаз към Терасата, Баня с Тоалетна.
Статут Апартамент!
Общата площ е 63.48м2, а чистата е 55.40м2;
Опция към имота е да се закупи Паркомясто или Гараж!
Забележка: Приложените снимки, схеми и визуализации са с цел добиване на максимална представа за завършения вид на имота.
Състояние: Предвидено е завършване на шпакловка и замазка.
Към момента включва: Екстериорна блиндирана врата; Под: нивелирана подова замазка; Стени: машинно-обработена гипсова мазилка с турбозол, висок клас ПВЦ дограма, инсталация за отопление.
Сградата: Луксозно завършени общи части, алуминиеви парапети, Безшумен хидравличен Асансьор, домофонна система за контролиран достъп в сградата.
Отлична локация: Сградата се изгражда в кв. Малинова долина – ЮГ. Лесен и бърз достъп до Околовръстен път, както и предвиден по план достъп до ул. Едуард Генов.
Нов Дом 1
 


