✨3-стаен ✨98 кв.м.✨желана локация✨
For Sale / 2 Bedroom apartment, Varna, Kaysieva gradina, 98 sq.m.
✨ 3-СТАЕН✨ гр. Варна среден етаж, без отстъпи, без преход, АС, възможност за П.М. поземно и открито.
Детайлна информация на : www.novdom1.bg – Реф. №: 83336
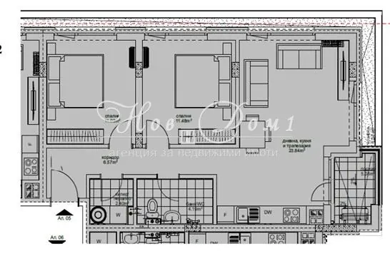
Имотът Представлява : Входно антре, бяня и тоалет в едно помещение,2 просторни спални по 12 кв.м. слънчев дневен тракт с обособена кухненска част около 24 кв.м., балкон.
Състояние : Имотът се издава съгласно „БДС“ – Екстериорна блиндирана врата. Под : нивелирана замазка подготвена за полагане на гранитогрес, паркет или настилка по Ваш избор. Стени : машинно обработена гипсова мазилка с турбозол подготвена за боя или тапет по ваш избор. Мокри Помещения : ръчно обработена циментова мазилка подготвена за полагане на фаянс и теракота .ВиК инсталация „на тапа“. ЕЛ инсталация : контакти, ключ и фасонки. МДФ интериорни врати и ПВЦ дограма .
Възможност имотът да се издаде „До Ключ“ – Екстериорна блиндирана врата. Подова настилка :коридор и кухненска част, спални. Стени : машинно обработена гипсова мазилка , грундирани и боядисани, мокри помещения циментова мазилка и положен фаянс, интериорни врати и ПВЦ дограма .
Отлична Локация : Имота се намира в един от най-предпочитаните за живеене и инвестиция райони на град Варна. Лесен и бърз достъп до главни пътни артерии, административни учреждения, банки, училища, детски градини, автобусни спирки, детски площадки, аптеки, търговски центрове, супермаркети, козметични студия, заведения и туристически атракции.
Строителство : Висококачествено „Ново Строителство“ – стоманобетонна конструкция посрещащи всички норми за сеизмичност съгласно „БДС“. Монолитна зидария изпълнена с най-висок клас Австрийски керамични блокове на фирмата „Wienerberger“ – Porotherm 25 N+F Light . Висок клас ПВЦ 5-камерна дограма с 65мм профил и 24мм всесезонен стъклопакет . Топлоизолационна система “BAUMIT”ESP-60mm. Силикат-силиконова фасадна мазилка на фирмата “BAUMIT” с висока паропропускливост и самопочистващ се ефект.
Сградата : Луксозно завършени общи части на естествен гранит, парапети от ковано желязо, хидравличен асансьор с „долно“ машинно гарантиращ безшумната работа на съоръжението. Облицовка на фасадата с естествен камък . Домофона система за контролиран достъп в сградата.
Екстри : Всеки закупен имот от „НОВ ДОМ 1“ е с включена застраховка за първата година от експлоатацията му. Имота е снабден със „СОТ“ система гарантираща Вашето спокойствие когато сте извън уютният си НОВ ДОМ .
Отлична Схема на плащане:
Забележка : Приложените по-горе описания, снимки, скици, архитектурни разпределения и визуализации са илюстративни, те имат за цел да Ви дадат максимално добра и идейна представа за общия вид и разпределението на имота ! Горепосочените са предоставени и одобрени от собственика, същите са публикувани с неговото съгласие ! Имотът се издава пригоден за живеене и е със статут на апартамент, което го прави идеален за инвестиция и отдаване под наем !
„НОВ ДОМ 1“ : Компанията разполага с : „Юридически Отдел“- извършващ всички необходими юридически и технически проверки на имота, организира всички етапи на сделката до нейното финализиране с нотариално прехвърляне на имота. „Кредитен Отдел“ – съдействащ за отпускане на банков кредит при възможно най-добри условия за клиента, като избора на банка се определя спрямо нуждите и възможностите на клиента. „Строително-Ремонтен Отдел“ – гарантиращ при нужда цялостен ремонт на вашето жилище до ключ при най-изгодни условия и цени.
👩💼 Консултант Недвижими Имоти:
Дарина Радева – 📞 0895 501 046
📲 Контакти за въпроси, коментари и огледи:
• Телефон: всеки ден от 8:30 до 22:30 – 0895 501 046
• WhatsApp: денонощно – 0895 501 046
• Viber: денонощно – 0895 501 046




