45 кв. дневна!! Гледка към Стара планина! Акт 16!
For Sale / 2 Bedroom apartment, Sofia, Drujba 1, 122 sq.m.
Просторен тристаен 45 кв. м. дневна!! Спални около 17 и 18 кв. м.!! Готов за обзавеждане и живеене!
Детайлна информация на : www.novdom1.bg – Реф. №: 82643
Консултант недвижими имоти: Горан Радков – 0897 000 214
Описание:
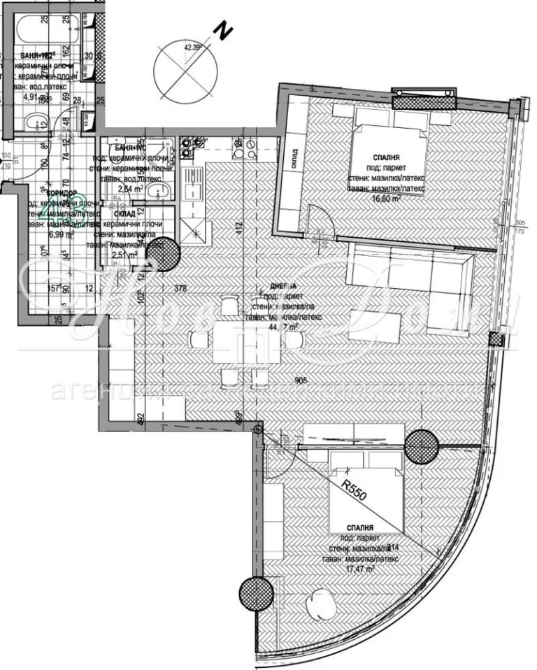
Апартаментът е с площ 109 кв. м., разположен на 4-ти, среден етаж, съответно покрит апартамент, в сграда с издаден акт 16 – готов за обзавеждане и нанасяне!
Жилището освен изключително просторно е и много светло, благодарение на големите прозорци, високи тавани и изложение насочено главно на изток и в по-малка степен на юг, с прекрасна гледка към Стара планина! Апартаментът се издава стандартно на шпакловка и замазка с блиндирана врата, която е красиво фурнирована с естествен дъбов фурнир.
Разпределението и размерите на отделните помещения са както следва:
- Предверие с площ 7 кв. м.
- Баня, първа, 5 кв. м.;
- Баня, втора, 2,6 кв. м.;
- Складово помещение 2,5 кв. м.;
- Просторна всекидневна с трапезария и кухня с размер 45 кв. м.!;
- Спалня, първа, около 17 кв. м.;
- Спалня, втора, около 18 кв. м.;
Tехнически характеристики:
Сградата е монолитна, масивна стоманобетонава конструкция, изпълнена с тухли „Wienerberger“, разполага с два асансьора „ORONA“, 24-часова охрана, контрол на достъпа. Енергийната ефективност е клас „А“, а върху тухлите e положена 100 мм топлоизолация, дограмата е 5-камерна с 4 сезонен стъклопакет. Общите части са изпълнени изцяло с гранит във фоайетата и стълбищната клетка. На кота +/- 0,00 има луксозно изпълнен санитарен възел с помещение за чистачка. Сградата разполага с две подземни нива с паркоместа. Паркоместата са с нормални габарити, даващи възможност да паркира и на по-големи автомобили тип „SUV“. Цена на паркомясто: 25 000 евро.
Разположение на имота:
Апартаментът се намира в северната част на кв. Дружба, в близост до пътните връзки към летище София и бърза връзка с основни градски артерии. В района има абсолютно всяка необходима социална инфраструктура като хранителни магазини и хипермаркети, училища и детски градини, спортни зали и центрове, ресторанти и заведения, не безизвестния парк с езеро, културен дом, строителни магазини и много други! В близост има изобилие от връзки на градския транспорт, които включват автобуси, трамваи, метро!
Предимства:
- Големи, просторни, светли помещения, които не просто дават усещане за пространство, а дават реално пространство!;
- 45 кв. м. дневна! Спални около 17 и 18 кв. м.!;
- Светъп, покрит и енергийно ефективен апартамент;
- Гледка към Стара планина;
- Висококачествено строителство и вложени материали;
- Отлични общи части!;
- Цялостна социална инфраструктура;
- Свързаност с основни градски артерии и градски транспорт;
- Бърза връзка с летище София, вкл. и чрез градски транспорт;
- Издаден акт 16!;
НОВ ДОМ 1 разполага с:
„Юридически Отдел“ – извършващ всички необходими юридически и технически проверки, организира всички етапи на сделката до нейното финализиране с нотариално прехвърляне на имота.
„Кредитен Отдел“ – съдействащ за отпускане на банков кредит при възможно най-добри условия за клиента, като избора на банка се определя спрямо нуждите и възможностите на клиента.
„Строително-Ремонтен Отдел“ – гарантиращ при нужда цялостен ремонт на вашето жилище до ключ при най-изгодни условия и цени.










