АКТ 16! Центът! Среден Етаж! Изцяло Вътрешен!
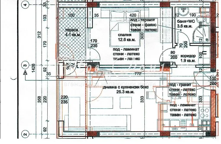
For Sale / 1 Bedroom apartment, Sofia, Oborishte, 67 sq.m.
Общи технически параметри на сградата:
— Конструкция: монолитна стоманобетонна безгредова конструкция с вертикални носещи елементи
— Външни и преградни стени: Външни ограждащи стени – тухлени зидове с дебелина 25 см, изпълнени с многокамерна керамична тухла. Вътрешни разпределителни и преградни стени в жилищата – тухлени зидове с дебелина 25 см и 12см, изпълнени с многокамерна керамична тухла.
— Фасада: топлоизолационна система, изградена от топлоизолационни плочи от EPS, с минимална плътност 15 кг/м3 и финишно покритие от водоотблъскваща, силно паропропусклива пастообразна силикатна мазилка.
— Дограма: петкамерна PVC дограма, с двоен стъклопакет с бяло стъкло – 4 мм, с възможност при изрично заявено желание от страна на клиента за монтаж на троен стъклопакет, с дебелина до 44 мм, със система от нискоемисионно и високоенергийно стъкло, с висока степен на термоизолация и светлопроводимост.
— Входни врати: пожароустойчиви, блиндирани, с декоративни каси, первази и ламинирано покритие, с двустранно заключване.
— ВиК инсталации: Водопроводната инсталация: хоризонтални и вертикални главни клонове за студена, топла и циркулационна вода от стабилизирани PPR тръби и хоризонтални разпределителни разводки от стабилизирани PPR тръби завършващи на тапи, с монтирани индивидуални водомери за всеки самостоятелен подобект в сградата; Канализационна система: окачени хоризонтални клонове в сутерена изградени от PVC тръби, както и обезшумени вертикални канализационни клонове и хоризонтални разводки от PVC тръби, завършващи на тапи.
— Ел. инсталация: изцяло оборудвани главни разпределителни табла с предпазители и електромери, захранвания със силови кабели от главните табла до оборудвани с предпазители апартаментни табла, както и електроинсталация за осветление и контакти, монтирани контакти и ключове, монтирани влагоустойчиви осветителни тела на балконите, монтирани осветителни тела в общите части.
— Слаботокови инсталации: домофонна инсталация, инсталация за цифрова телевизия и интернет, монтирани звънци до входните врати. Изграждане на структурно окабеляване за индивидуална охранителна система с възможност за свързване към СОТ.
— Вентилация: Жилищни помещения: смукателна сифонна вентилация на санитарните възли; кухненската вентилация, изпълнена със сифонен комин от бетонови тела, с цел изхвърлянето на въздуха над покрива; Гараж: Смукателна вентилационна инсталация;
— Отопление: За всеки апартамент е предвидена водно-помпена двутръбна инсталация от топлоизточника до изцяло оборудваната колекторна кутия, с разположена в сутерена абонатна станция за отопление и битово горещо водоснабдяване.
— Климатизация (опционална): при изрично заявено желание от страна на клиента може да се изградят трасета от медни тръби, с топлоизолация от микропореста гума и гофрирана тръба за отвеждане на кондензната вода през летния режим, когато климатизаторите работят в режим охлаждане;
— Общи части: подове: настилки от полиран гранит; стени: декоративни мазилки на основата на минерални вещества, осигуряващи висока степен на устойчивост на материалите; тавани: латекс с вградено сензорно осветление; включително интериорно оформление на входното пространство с развита социална среда; асансьор: KONE/ORONA – 1 брой за 8 човека/630кг.
— Вертикална планировка: ландшафтно оформление с настилки с марка Semmelrock.
„НОВ ДОМ 1“ : Компанията разполага с : „Юридически Отдел“- извършващ всички необходими юридически и технически проверки на имота, организира всички етапи на сделката до нейното финализиране с нотариално прехвърляне на имота. „Кредитен Отдел“ – съдействащ за отпускане на банков кредит при възможно най-добри условия за клиента, като избора на банка се определя спрямо нуждите и възможностите на клиента. „Строително-Ремонтен Отдел“ – гарантиращ при нужда цялостен ремонт на вашето жилище до ключ при най-изгодни условия и цени.
„Консултант Недвижими Имоти „: Петър Христов – 0888925556







