ЧУДЕСЕН НОВ ДОМ ИЛИ СУПЕР ИНВЕСТИЦИЯ! НАЙ-ДОБРАТА ЦЕНА ЗА РАЙОНА! 300метра от метростанция “ГОРНА БАНЯ”!
For Sale / 1 Bedroom apartment, Sofia, Ovcha kupel 2, 62 sq.m.
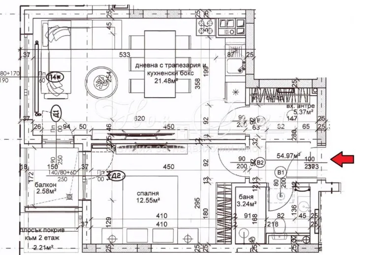
Имотът представлява: голямо входно антре с място за вграден гардероб, Дневен тракт + Кухненски бокс около 22кв.м., Спалня около 13кв.м. обща Тераса с излаз от двете стаи, Баня и Тоалет. Помещава се в новострояща се тухлена сграда, на 2-ри етаж от общо 6, със западно изложение. Отличната му локация, в непосредствена близост до метростанция Горна Баня, го прави чудесно жилище, както за живеене, така и за инвестиция със сигурен доход.
Отлична Локация: Имота се намира в един от най-предпочитаните за живеене и инвестиция райони на град София – кв. Овча Купел, на 300м. от метростанция на Горна Баня. Лесен и бърз достъп до главни пътни артерии, административни учреждения, банки, училища, детски градини, автобусни спирки, детски площадки, аптеки, търговски центрове, супермаркети, козметични студия, заведения и туристически атракции.
Състояние : Имотът се издава съгласно „БДС“ – Екстериорна блиндирана врата. Под: нивелирана замазка подготвена за полагане на гранитогрес, паркет или настилка по Ваш избор. Стени: машинно обработена гипсова мазилка с турбозол подготвена за боя или тапет по ваш избор. Мокри Помещения: ръчно обработена циментова мазилка подготвена за полагане на фаянс и теракота. ВиК инсталация „на тапа“. ЕЛ инсталация : контакти, ключ и фасонки. Немска 6 камерна ПВЦ дограма REHAU с троен стъклопакет. Сградата ще бъде газифицирана!
Строителство : Висококачествено „Ново Строителство“ – стоманобетонна конструкция посрещащи всички норми за сеизмичност съгласно „БДС“. Монолитна зидария изпълнена с най-висок клас Австрийски керамични блокове на фирмата „Wienerberger“ – Porotherm 25 N+F Light . . Топлоизолационна система “BAUMIT”ESP-60mm. Силикат-силиконова фасадна мазилка на фирмата “BAUMIT” с висока паропропускливост и самопочистващ се ефект.
Сградата : Луксозно завършени общи части на естествен гранит, парапети от метал, хидравличен асансьор с „долно“ машинно гарантиращ безшумната работа на съоръжението. Домофона система за контролиран достъп в сградата.
Отлична Схема на плащане: 20% капаро ; 60% при снабдяване сградата с образец : „АКТ 14“ ; 10% при снабдяване на сградата с Образец Акт 15; 10% при снабдяване сградата с „АКТ 16“ (Разрешително за Въвеждане в Експлоатация).
Забележка : ПОСОЧЕНАТА ЦЕНА Е БЕЗ ВКЛЮЧЕН ДДС! Приложените по-горе описания, снимки, скици, архитектурни разпределения и визуализации са илюстративни, те имат за цел да Ви дадат максимално добра и идейна представа за общия вид и разпределението на имота ! Горепосочените са предоставени и одобрени от собственика, същите са публикувани с неговото съгласие ! Имотът се издава пригоден за живеене и е със статут на апартамент, което го прави идеален за инвестиция и отдаване под наем !
„НОВ ДОМ 1“ : Компанията разполага с : „Юридически Отдел“- извършващ всички необходими юридически и технически проверки на имота, организира всички етапи на сделката до нейното финализиране с нотариално прехвърляне на имота. „Кредитен Отдел“ – съдействащ за отпускане на банков кредит при възможно най-добри условия за клиента, като избора на банка се определя спрямо нуждите и възможностите на клиента. „Строително-Ремонтен Отдел“ – гарантиращ при нужда цялостен ремонт на вашето жилище до ключ при най-изгодни условия и цени.
„Консултант Недвижими Имоти „ : Димитър Петров – 0895 501 006




