Изключително рядък имот! Светла височина на 6.90 метра! Последен етаж с Панорама!
For Sale / 2 Bedroom apartment, Sofia, с. Бистрица, 125 sq.m.
Изключително рядък имот! Светла височина на 6.90 метра! Последен етаж с Панорама!
Представяме Ви впечатляващ **3-стаен апартамент ново строителство**, разположен в **луксозен зелен жилищен комплекс** в полите на **Витоша**. Имотът е отличен избор както за собствено ползване, така и за инвестиция, благодарение на съчетанието от **престижна локация, чист въздух, модерно строителство и функционално разпределение**. 💎
🔹 **Основни характеристики на имота:**
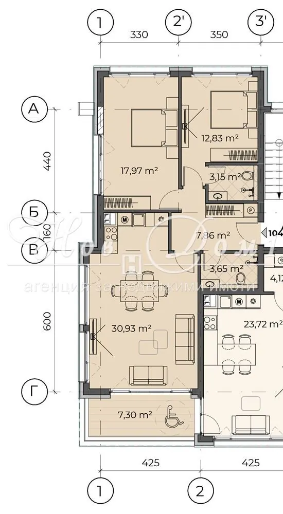
– 🏠 **Тип имот:** 3-стаен апартамент
– 📍 **Локация:** гр. София, с. Бистрица
– 📅 **Година на построяване:** 2028 г.
– 🆕 **Строителство:** ново строителство
– 📐 **Обща площ:** 125 кв.м
– 💶 **Цена:** 312 000 €
– 🛏️ **Брой спални:** 2
– 🚿 **Брой бани с тоалетни:** 2
– 🛗 **Асансьор:** да
🌟 **Специално предимство на този имот:**
– 📏 Имотът е със **светла височина 6,90 м**, което дава **уникална възможност за изграждане на второ ниво** в жилището. Това позволява обособяване на **още 1 или 2 спални**, както и **допълнителна баня с тоалетна** – истински потенциал за създаване на много по-просторен и впечатляващ дом!
🚗 **Допълнителни възможности:**
– Има възможност за закупуване на **гараж/гаражи** 🚘
– Възможност за **подземно паркомясто/паркоместа** 🅿️
– Осигурена възможност за закупуване на **до 3 паркоместа или гаража към жилището**
🌿 **Предимства на проекта:**
– 🌳 Луксозен **ЗЕЛЕН жилищен комплекс** в полите на Витоша и Черни връх
– 🏢 **6 бутикови сгради** с по 7–10 жилища във всяка
– 🏘️ Общо **49 апартамента**, разпределени в 6 сгради
– 🌄 Панорамни гледки към **Витоша, Черни връх и с. Бистрица**
– 💨 Зелена среда, тишина и чист въздух
– 🏡 Налични жилища със **собствен двор**
– 📐 Функционални разпределения и просторни помещения
– ☀️ Отлично осветени ъглови дневни
– ♻️ Висока енергийна ефективност на сградите
🧱 **Строително изпълнение и качество:**
– Външни стени от **керамична тухла Wienerberger 25 см**
– Вътрешни стени от **керамична тухла Wienerberger 12 см**
– Фасада с **керамично покритие**, структурна мазилка и топлоизолация минимум 10 см
– PVC дограма **Kömmerling с 7 камери и троен стъклопакет**
– Блиндирана входна врата с падащ праг 🔐
– Разводка за **термопомпа и вътрешни тела на ток**
– Възможност за **подово отопление**
– Луксозни общи части с гранитогрес и дизайнерски облицовки ✨
– Електрически асансьор с автоматични врати
📆 **Очаквани срокове:**
– Акт 14 – **Август 2026 г.**
– Акт 15 – **Май 2027 г.**
– Акт 16 – **Януари 2028 г.**
📍 **За квартала / района:**
С. Бистрица е предпочитан район за живеене, известен с красивата си природа, спокойствието и близостта до Витоша. 🌲
Локацията предлага бърз достъп до София, като същевременно осигурява уют, чист въздух и усещане за живот извън градския шум. 🚗🌄
📞 Ако търсите **просторен, модерен и перспективен дом** в престижен район, този имот заслужава Вашето внимание!
„НОВ ДОМ 1“ : Компанията разполага с : „Юридически Отдел“- извършващ всички необходими юридически и технически проверки на имота, организира всички етапи на сделката до нейното финализиране с нотариално прехвърляне на имота. „Кредитен Отдел“ – съдействащ за отпускане на банков кредит при възможно най-добри условия за клиента, като избора на банка се определя спрямо нуждите и възможностите на клиента. „Строително-Ремонтен Отдел“ – гарантиращ при нужда цялостен ремонт на вашето жилище до ключ при най-изгодни условия и цени.
„Консултант Недвижими Имоти „: Петър Христов – 0888925556













