Твоят нов дом в малък бутиков комплекс в с.Хераково с избор на къщи от 155 кв.м до 185 кв.м.
For Sale / House, Sofia County, Herakovo village, 185 sq.m., Yard: 521 sq.m.
Предстоящ за изграждане малък бутиков комплекс – с.Хераково,м.Белица, Софийска област с избор на къщи от 155кв.м до 185 кв.м.
185 кв.м собствен дом — на цена, която градът не може да предложи.
Има имоти, които купувате. И има такива, в които живеете. Тази къща е от втория тип.
Хераково не е компромис с по-евтино място. Това е съзнателен избор за различен стандарт на живот — повече пространство, тишина, чист въздух и собствен двор, на минути от столицата.
Какво получавате за 259 000Е без ДДС:
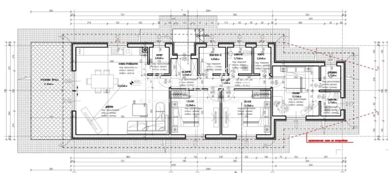
- 185 кв.м нова къща в бутиков комплекс от само 12 имота
- 4 стаи, 3 спални, 2 бани с тоалетни, балкон
- Подово отопление — включено в цената
- Модерна архитектура, висококачествени материали, функционално разпределение и изобилие от естествена светлина
- Избор на по-компактен вариант от 155 кв.м, ако предпочитате
- Опция завършване „До ключ или пълно обзавеждане по индивидуален проект — с внимание към всеки детайл
За 259 000Е в София получавате тристаен апартамент в панелен блок. Тук получавате къща.
Влезте с 5 000Е и заключете цената днес.
Предстартовите промо цени са ограничени и обвързани с етапа на строителство. Резервацията от 5 000Е блокира вашия имот преди разрешението за строеж да е влязло в сила — и преди пазарът да е отразил реалната стойност на комплекса.
Плащате на 10 равни вноски, само при доказан строителен напредък:
- 10% при подписан предварителен договор
- 10% при готови основи (кота 0)
- 10% при готов покрив
- 10% при готова зидария
- 10% при завършени ВиК, Ел. и ОВК инсталации
- 10% при вътрешни мазилки и замазки
- 10% при поставена изолация
- 10% при монтирана дограма
- 10% при Акт обр. 15
- 10% при Акт 16 — ключовете са ваши
Нито стотинка повече, преди да видите реален резултат.
За кого е тази къща:
За семейството, което е надраснало апартамента, но не иска да напуска близостта до София. За родителите, които искат деца да растат с двор, а не с асансьор. За инвеститора, който разбира, че новото строителство извън столицата е един от малкото останали сегменти с реален потенциал за ръст. За човека, който е свикнал да живее добре и не е готов да прави компромис с пространството и качеството.
Районът:
Хераково и м. Белица предлагат онова, което столицата физически не може да даде — ниско застрояване, тишина, чист въздух и пешеходен достъп до природа. В непосредствена близост са ежедневните удобства, а връзката с ключовите пътни артерии към столицата е бърза и удобна.
Не купувате квадратни метри. Купувате качество на живот, което не се измерва само в евро.
Свържете се с нас за оглед на място или преглед на интериорните проекти — и вижте защо имотите в този комплекс се резервират преди да са излезли от земята.























