МОДЕРЕН КОМПЛЕКС | ФУНКЦИОНАЛЕН | ТОП ЛОКАЦИЯ
For Sale / 1 Bedroom apartment, Plovdiv, Smirnenski, 57 sq.m.
€ 80850
|
Price per sq.m: € 1 418 /m2
Construction Type: bricks
Year of Construction: 2027
Floor: 3
Total Floors: 6
Реф. №: 85521
Call
Description
Your Broker
МОДЕРЕН КОМПЛЕКС | ФУНКЦИОНАЛЕН | ТОП ЛОКАЦИЯ
🌐 www.novdom1.bg 📌 Реф. №: 85521
Отлична цена за района
Представяме Ви функционален двустаен апартамент с отлично разпределение, подходящ както за живеене, така и за инвестиция!
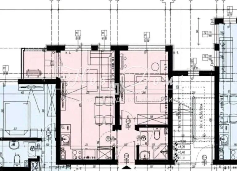
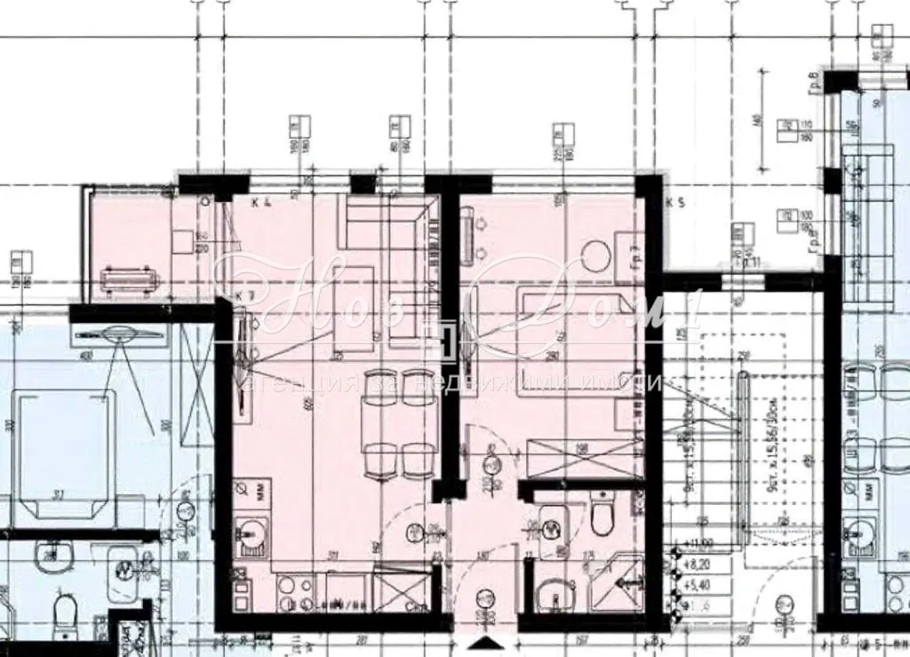
Разпределение:
-Входно антре
-Дневна с кухня и трапезария
-Спалня
-Баня с WC
-Тераса
🌿 Предимства на комплекса:
✔ Бутиков комплекс с модерна визия и стилна архитектура
✔ Тиха и зелена среда с усещане за спокойствие
✔ Наличие на търговски обекти и удобства на пешеходно разстояние
✔ Бърз достъп до основни булеварди и градска инфраструктура
За повече информация и огледи на Вашия бъдещ Дом:
Елеонора Димитрова
📞 Телефон 0895501041 – Всеки ден от 8:30 до 22:00
📱 Viber – 24/7 – 0895501041
📱 WhatsApp – 24/7 – 0895501041


