MP Residence
For Sale / Building, Sofia, Manastirski livadi
€ 0
|
Price per sq.m: € 0 /m2
Видове отопление: Електричество
Екстри: асансьор, гараж, с паркомясто
Етап на строителсто: project
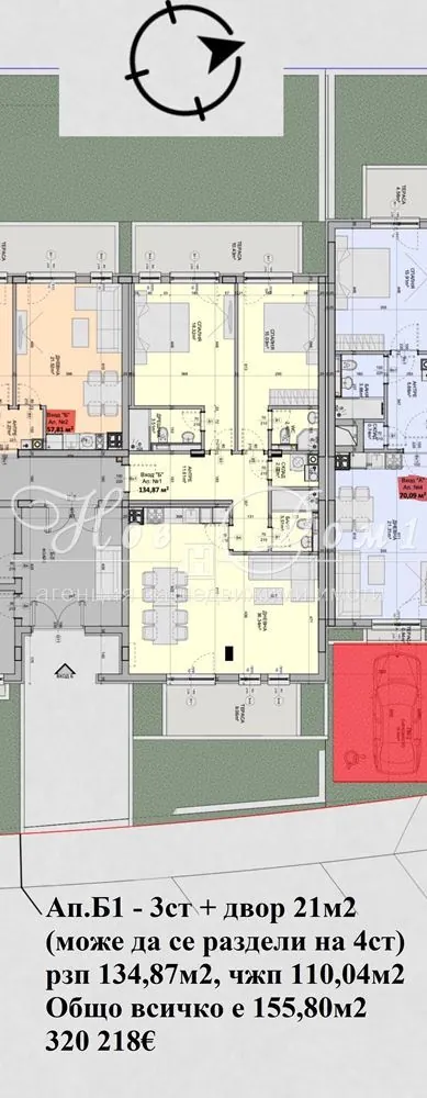
Стаи: 50
Реф. №: 83316
Call
Description
Your Broker































