Само 10% първа вноска! Южен двустаен! Най-висок клас строителство!
For Sale / 1 Bedroom apartment, Sofia, Vitosha, 63 sq.m.
Само 10% първа вноска! Южен двустаен! Най-висок клас строителство!
Референтен код №84421 в www.novdom1.bg!
Консултант недвижими имоти: Мирослав Стоянов, тел. 0879 900 430!
Основни предимства на имота:
- ЮГ! ЮГ! ЮГ!
- Луксозна бутикова сграда!
- Неустоима Локация: до посолствата в кв. Витоша и Симеоновско шосе!
- Качество: сграда Еталон в квартала, изпълнение на доказана строителна фирма и без компромиси вложени материали и изработка последно поколение!
- Опция Гараж или Паркомясто!
Апартаментът представлява: входно Антре с място за Дрешник и инсталиране на пералня, просторна и светла Всекидневна – Кухн.Бокс + Трапезария + Хол с изход към Балкон около 7м2, който е обща с топла Спалня около 13м2, Баня + Тоалетна, възможност за закупуване допълнително на Складово помещение/Паркомясто или Гараж в сутерена на сградата!
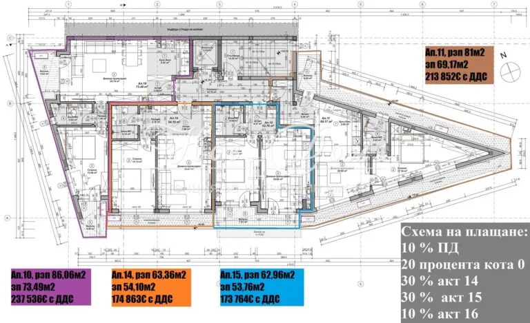
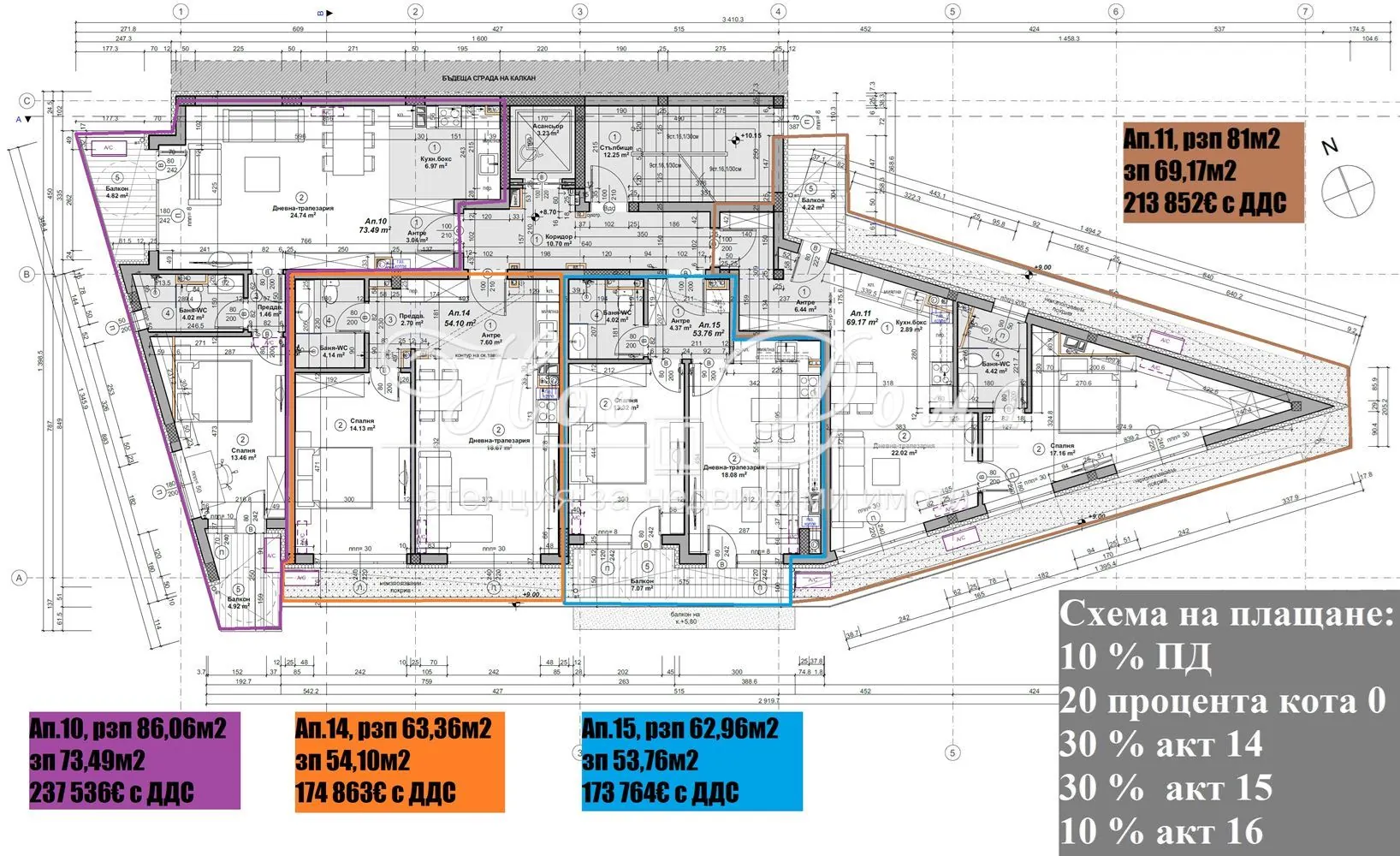
Общата площ е 62,96м2, а застроената е цели 53,76м2. Статут Апартамент! Имотът може да бъде закупен с кредит от банка, в случай на желание от финансиране с ипотечен/жилищен кредит! Сградата и имота ще се отопляват на газ или електричество – по желание на клиента. Очаквано въвеждане в експлоатация/Акт 16 е до края на 2028 година, като е предвиден Технически паспорт/енергиен сертификат!
Забележка: Приложените снимки, схеми и визуализации са с цел добиване на максимална представа за завършения вид на имота.
Състояние: Предвидено е завършване на шпакловка и замазка, като може да бъде издадено До Ключ или изцяло обзаведено по интериорен проект!
Към момента включва: Екстериорна блиндирана врата; Под: нивелирана подова замазка; Стени: машинно-обработена гипсова мазилка с турбозол, висок клас ПВЦ дограма с троен стъклопакет и стъкла 4 сезона, инсталация за отопление на газ и тръби за радиатори/лири във всяко помещение.
Сградата: Луксозно завършени общи части с естествен камък – гранит, алуминиеви парапети, испански електрически асансьор Orona. Звънчева и Видео-домофонна система за контролиран достъп в сградата.
Отлична локация: Намира се до посолствата в кв. Витоша и Симеоновско шосе! На около 5 минути от бъдеща Метростанция на бул. Симеоновско шосе и непосредствено близо до автобусен транспорт. Други близки обекти са съответно на около 6-8 минути пешеходно до Фантастико и Кауфланд. Недалеч са Столичен Зоопарк, Ловен парк и планина Витоша!
Уважаеми клиенти само и единствено от агенция Нов Дом 1 можете да получите преференциални цени и условия за покупката на този и други имоти в тази сграда.
Нов Дом 1 – винаги най-доброто на пазара!








