ТОП ЛОКАЦИЯ ДО НСА! ДО БЪДЕЩА МЕТРОСТАНЦИЯ! СХЕМА 40/60 – ИНВЕСТИЦИЯ! ОТЛИЧЕН ЗА ОТДАВАНЕ ПОД НАЕМ!
For Sale / 1 Bedroom apartment, Sofia, Malinova dolina, 57 sq.m.
📞 Консултант недвижими имоти: Роман Юсюмбели
📱 0899 366 556 ОФЕРТА: 85631
ТОП ЛОКАЦИЯ В МАЛИНОВА ДОЛИНА • ДО НСА НОВО •
СТРОИТЕЛСТВО • ДВУСТАЕН С ПОТЕНЦИАЛ • СХЕМА 40/60
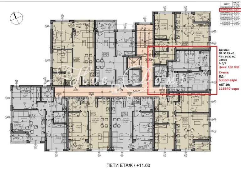
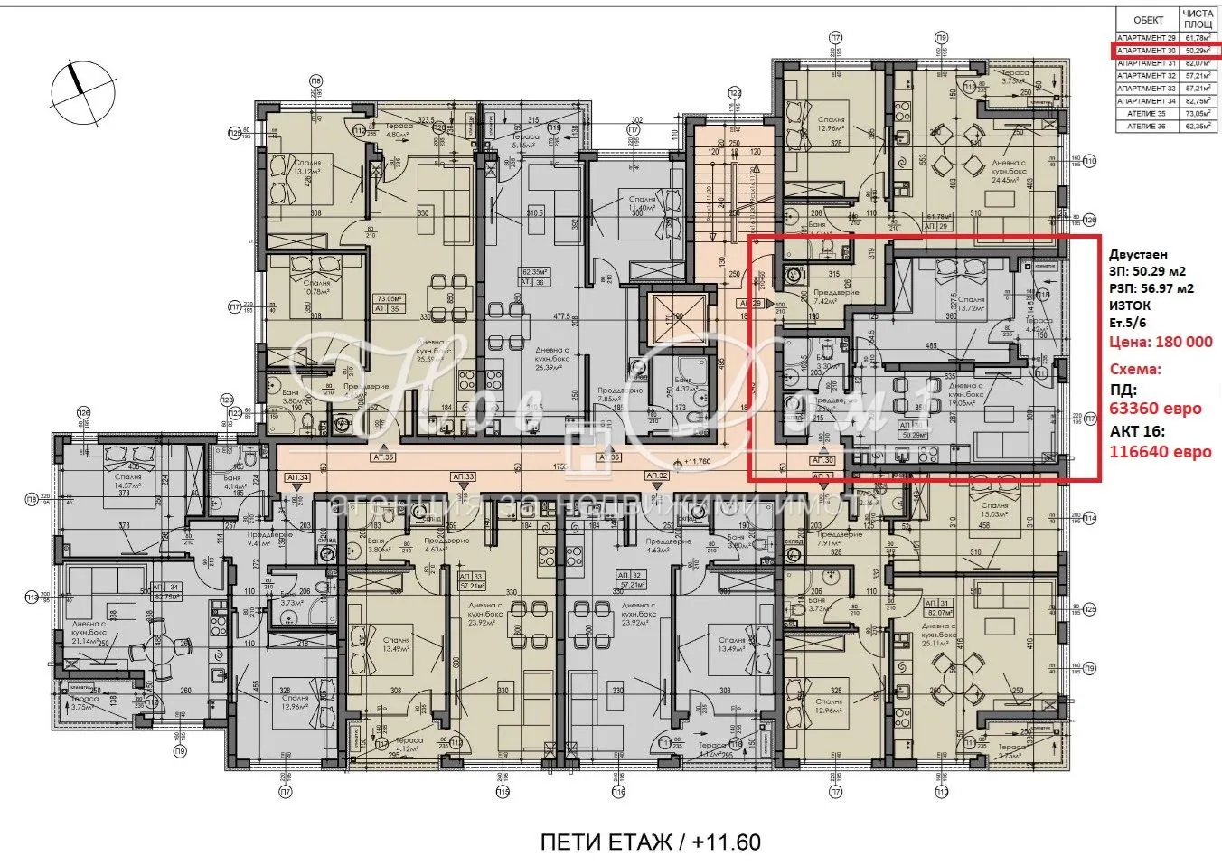
Предлагаме за продажба апартамент 30 в новострояща се жилищна сграда в кв. Малинова долина – район с бързо развитие, силно търсене и отлична перспектива за инвестиция.
🏠 ОСНОВНИ ПАРАМЕТРИ
✔️ Застроена площ: 50.29 кв.м
✔️ Общи части: 6.68 кв.м
✔️ Обща площ: 56.97 кв.м
✔️ Етаж: 5 от 6
✔️ Изложение: Изток
👉 Класически двустаен с правилни форми и отлично усвоено пространство
💰 ЦЕНА И СХЕМА
💰 180 000 евро
🔥 СХЕМА НА ПЛАЩАНЕ:
✔️ ПД: 63 360 евро
✔️ АКТ 16: 116 640 евро
👉 Влизаш с ~37% и държиш имота до завършване
👉 Подходящ както за инвестиция, така и за лично ползване
🏡 РАЗПРЕДЕЛЕНИЕ
✔️ Дневна с кухненски бокс – 19.05 кв.м
✔️ Спалня – 13.72 кв.м
✔️ Баня с тоалетна – 3.30 кв.м
✔️ Преддверие – 2.88 кв.м
✔️ Склад/ниша – удобно обособен
✔️ Тераса – 4.42 кв.м
👉 Правоъгълни помещения – лесно обзавеждане
👉 Отделна спалня – реален двустаен, не преходен
👉 Тераса към спалнята – допълнителен комфорт
📍 ЛОКАЦИЯ
✔️ Малинова долина – един от най-търсените нови квартали
✔️ Близост до Студентски град и бъдещи инфраструктурни проекти
✔️ Лесен достъп до Околовръстен път
✔️ Подходящ както за живеене, така и за отдаване под наем
👉 Район с висок наемен потенциал
🏗️ СГРАДА
✔️ Ново строителство с модерна визия
✔️ Контролиран достъп
✔️ Добре проектирани общи части
✔️ Възможност за паркоместа
💡 ЗА КОГО Е ТОЗИ ИМОТ?
✔️ За инвестиция – отличен за отдаване под наем
✔️ За първо жилище
✔️ За клиент с ограничен бюджет, но търсещ качество
✔️ За хора, които искат ликвиден актив
⚡ 👉 Това е типът имот, който винаги има търсене.
Двустайните изчезват първи – и не случайно.
📩 Свържи се с мен за оглед и повече информация.
Уважаеми клиенти, само и единствено от агенция Нов Дом 1 можете да получите преференциални условия за покупката на този и други имоти.
Нов Дом 1 – винаги най-доброто на пазара!










