2000€/м2 ! ТОП Схема 20/80% ! Две Тераси ! Тишина и Спокойствие ! Гаражи !
For Sale / 2 Bedroom apartment, Sofia, Levski, 116 sq.m.
2000€/м2 ! ТОП Схема 20/80% ! Две Тераси ! Тишина и Спокойствие ! Гаражи !
Референтен код №83474 в www.novdom1.bg!
Консултант недвижими имоти: Калоян Щерев, тел. 0894 555 630!
Крайна цена с включено ДДС!
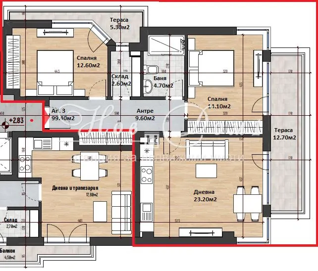
Апартаментът представлява: Голяма всекидневна около 23.2м2; Основна Спалня около 14.1м2; Втора Спалня около 12.6м2; Баня и тоалетна около 4.7м2; Склад около 2.6м2; антре около 9.6м2. Разположен на 2ри от 4 етажа в уникална нова сграда на ТОП локация в кв. Левски. Безупречно изпълнение на сградата от доверни строители с луксозни общи части и озеленена част около сградата. В близост до бул. Ботевградско шосе, което му дава лесен достъп до централната част на града. В момента в строеж. Очакван Акт 16 в началото на 2028г.
Продажната му цена е 232 200€ с ДДС!
Схемата за плащане / освен по договаряне / е:
- 20% на предварителен договор
- 80% на АКТ 16
Предлагаме и 3ст партерен с двор и 3ст на последният етаж с панорамна гледка и голяма тераса!
Опция за подземни гаражи!
- Гаражи по 35 000€
Най-високото качество на строителство и не само:
- Контрол на достъпа
- СОТ
- Луксозни общи части
- Зелени площи около сградата
Забележка: Приложените снимки, схеми и визуализации са с цел добиване на максимална представа за имота.
Състояние: Жилището се завършва до БДС; Екстериорна блиндирана врата; Стени и Тавани – Гипсова мазилка; Под – Циментова замаска; Тераси –
хидроизолация и гранитогрес.
Отлична локация:
На пешеходно разтояние от:
- 106 ОУ
- Ресторант Question Mark
- Магазин за хранителни стоки
- Открит стадион
- Спирки на трамвай 22
- Спирки на автобуси 79 и 90
На близо разтояние с кола:
- бул. Ботевградско шосе
- Международно Летище София
- Супермаркети Фантастико, Кауфланд, Била
- Парк Герена
- Стадион Георги Аспарухов
Нов Дом 1 – винаги най-доброто на пазара!





