Топ цена! Ново строителство! Статут Апартамент! 🏆✨
For Sale / Studio, Sofia, Drujba 2, 51 sq.m.
Топ цена! Ново строителство! Статут Апартамент! 🏆✨
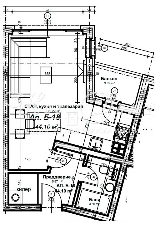
Представяме ви функционален 1-стаен апартамент в ж.к. Дружба 2, София – идеален както за лично ползване, така и като инвестиция. Имотът е част от модерна нова сграда с качествено изпълнение и удобен достъп до ключови точки в града. Просторното студио с обща площ 51 кв.м позволява комфортно обитаване.
– 📍 Локация: София, ж.к. Дружба 2
– 🏠 Тип: 1-стаен, ново строителство (статут Апартамент)
– 📐 Общa площ: 51.00 кв.м
– 💶 Цена: 108 830 €
– 🗓️ Планирано завършване: 2027 г.
– 🔑 Предимства: функционално разпределение, светли помещения, висок инвестиционен потенциал
– 🧱 Сграда: съвременно строителство, качествени общи части и материали
– 📈 Подходящ за: отдаване под наем или първо жилище; лесна поддръжка и ниски разходи
– 🤝 Възможност за съдействие при финансиране и довършителни решения по избор
Допълнителни акценти:
– 🌟 Топ локация с бърз достъп до метролиния, булеварди и бизнес зони
– 🛒 Наблизо: търговски обекти, училища, детски градини, зелени площи и спортни съоръжения
– 🚶 Удобна пешеходна инфраструктура и връзка с паркoве за активен начин на живот
Квартал Дружба 2 е динамично развиваща се зона с отлично транспортно обслужване, включително метро и множество автобусни линии. Районът съчетава спокойствие, зеленина и практичност, като предлага всички ежедневни удобства на една ръка разстояние. 🌳🚇
Свържете се с нас за оглед и детайлна план-схема. 📞✨
„НОВ ДОМ 1“ : Компанията разполага с : „Юридически Отдел“- извършващ всички необходими юридически и технически проверки на имота, организира всички етапи на сделката до нейното финализиране с нотариално прехвърляне на имота. „Кредитен Отдел“ – съдействащ за отпускане на банков кредит при възможно най-добри условия за клиента, като избора на банка се определя спрямо нуждите и възможностите на клиента. „Строително-Ремонтен Отдел“ – гарантиращ при нужда цялостен ремонт на вашето жилище до ключ при най-изгодни условия и цени.
„Консултант Недвижими Имоти „: Петър Христов – 0888925556



