Valena
For Sale / Building, Sofia, Ovcha kupel, 1 sq.m.
€ 1
|
Price per sq.m: € 1 /m2
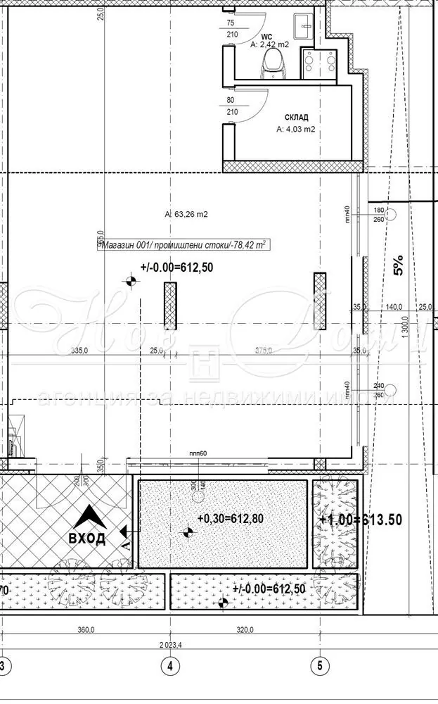
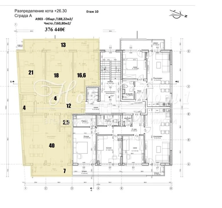
Construction Type: bricks
Екстри: в строеж, асансьор
Етап на строителсто: after act 14
Year of Construction: 2024
Реф. №: 75429
Call
Description
Your Broker

















