Your new home or excellent investment!
For Sale / Studio, Sofia, Gorna bania, 45 sq.m.
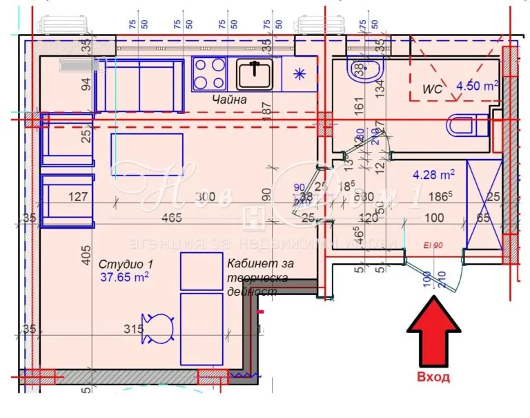
The property comprises: entrance hall of 4.28 sq.m. with a niche for a built-in wardrobe or coat rack; a large bathroom and toilet in one of 4.50 sq.m.; a living room with a kitchen area, space for a sofa bed and dining area over 23 sq.m. The built-up area of the property is 37.65 sq.m; the built-up area with common parts is 44.60 sq.m. A studio property on a basement floor with natural light through an English-type courtyard. This property is a perfect investment: for renting out /long-term and short-term/, or for business development purposes. Studio status.
Possibility to purchase a covered parking space for 20,000€
Excellent Location: The property is located in one of the most preferred residential and investment areas in Sofia, Gorna Banya district – a 10-minute walk from Gorna Banya metro station, 5 minutes to 53rd Primary School “Nikolay Hrelkov”, 4 minutes to Gorna Banya Park, in close proximity to main roads, schools, kindergartens, bus stops, playgrounds, pharmacies, etc.
Condition: The property is rented according to the “BDS” – Exterior armored door. Flooring: leveled screed prepared for laying granite, parquet, or flooring of your choice. Walls: machine-treated gypsum plaster with turbozol prepared for painting or wallpaper of your choice. Wet rooms: manually treated cement plaster prepared for laying tiles and terracotta. Plumbing installation “on tap”. Electrical installation: sockets, switches, and fittings. Installed aluminum radiators and REHAU PVC joinery. Gas heating!
Note: The descriptions, photos, sketches, architectural layouts, and visualizations provided above are intended to give you a very good and conceptual idea of the overall appearance and layout of the property! The above are provided and approved by the owner, and are published with his consent! The property is suitable for living and has a Studio status, making it ideal for investment and rental!
NEW HOME 1: The company has: “Legal Department” – performing all necessary legal and technical checks of the property, organizing all stages of the transaction until its finalization with notarial transfer of the property. “Credit Department” – assisting in obtaining bank loans under the best possible conditions for the client, with the choice of bank determined according to the client’s needs and capabilities. “Construction-Renovation Department” – ensuring comprehensive renovation of your home if needed, at the most favorable conditions and prices.
“Real Estate Consultant”: Dimitar Petrov – 0895 501 006










